Stan Rovinj, Rovinj

€ 831.915
5
202 m²
3
1
Da
Balkon
Terasa

Bilješka

Oglas ažuriran 22. 01. 2026.
Opis

referenca: 1008-476

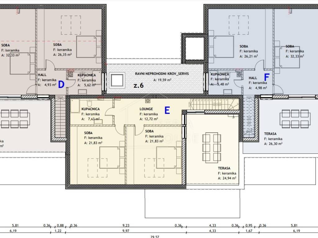
Rovinj, stan na prvom katu, stan E

Istra, Rovinj

Rovinj, grad nadaleko poznat po svojim ljepotama, kako kulturnim pa tako i zabavnim. Grad koji iz godine u godinu privlači sve veći broj turista i posjetilja te ih ugošćuje u svojim ulicama, galerijama, restoranima, hotelima,...

U Rovinju, gradu neizmjernih ljepota prodaje se moderni stan u izgradnji od 159 m2 sa pripadajućim balkonom i terasom raspoređen na 2 etaže.
Na prvoj etaži nalazi open space prostor kojeg čine dnevni boravak, blagavoana i kuhinja, kupaonica, ostava, dvije spavaće sobe od kojih jedna ima svoju vlastitu kupaonicu.
Na gornjoj etaži nalaze još dodatne dvije spvaće sobe te još jedna kupaonica. sa donje etaže iz dnevnog prostora se izlazi na balkon, a sa gornje na veliku terasu.
Stanu pripadaju i 2 parkirna mjesta u garaži kao i jedno spremište.

Stan se gradi po suvremenim standardima te će biti: klimatiziran, podno grijanje na gradski plin, podovi keramika – parket, protuprovalna ulazna vrata u stanove, kompletni unutarnji zidovi unutar stanova Knauf sistem, aluminijska stolarija sa elektro roletama i muharnicima, video parlafon, fasada – kamena vuna 10 cm,staklene balkonske ograde.

Suvremena nekretnina vrijedna pažnje smještena u urbanoj sredini i u blizini svih potrebnih sadržaja za kvalitetan život.

ID CODE: 1008-476

Sandro Mitton
Agent s licencom
Mob: +385 915479886
E-mail: info@istria-house.com
www.istria-house.com
Značajke
Vrsta
Stan
Ugovor
Prodaja
Kat
1 kat
Katovi zgrade
1
Dizalo
Da
Površina
202 m²
Prostorije
5
Spavaće sobe
4
Kupaonice
3
Balkon
Da
Terasa
Da
Garažno mjesto, parkirna mjesta
1 u garaži, 2 na zajedničkom parkingu
Grijanje
Centralno, podno grijanje
Klimatizacija
Samostalno, hlađenje/grijanje
Ostale karakteristike
  • Alarmni sustav
Informacije o cijeni
Cijena
€ 831.915
Cijena po m²
4.118 €/m²
Energetska učinkovitost
  • Godina izgradnje

    2023
  • Grijanje

    Centralno, podno grijanje
  • Klima uređaj

    Samostalno, hlađenje/grijanje
  • Energetski certifikat

    Neklasificirano
Otkrijte svaki kutak nekretnine
+5
Dodatne mogućnosti

Obratite se oglašivaču

Ili