Trosobni stan Valmade, Pula, Šikići - Busoler , Pula

€ 174.000
3
54 m²
1
2
Ne
Balkon
Terasa

Bilješka

Oglas ažuriran 22. 01. 2026.
Opis

referenca: 2796

NOVOGRADNJA U BLIZINI MORA,ZGRADA A2-STAN A

U prodaji imamo stan na drugom katu novogradnje – zgrada A2,stan A u sklopu atraktivnog stambenog kompleksa smještenog na mirnoj lokaciji.
Povezanost stana je na odličnoj lokaciji od grada i kratkoj pješačkoj udaljenosti od prve plaže/mora.
Stan A se nalazi u zgradi sa četri stambene jedinice,te osigurava privatnost i mir.
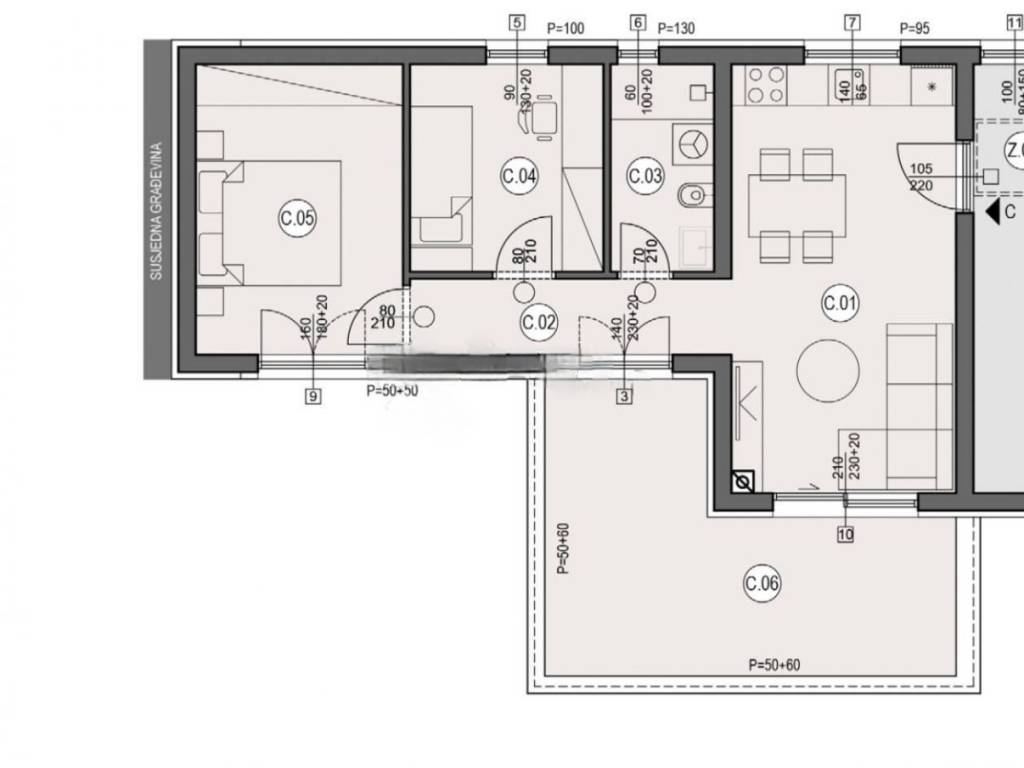
Stan se sastoji od hodnika, kuhinje, dnevnog boravka,2 spavaće sobe, kupaonice,balkona,ostave.
Stan je opremljen podnim grijanjem,klimatskim jedinicama,električne rolete,Pvc stolarija s troslojnim staklom, keramičkim i laminatnim podovima.
Stanu pripada jedno parkirno mjesto i spremište.
U blizini se nalaze svi potrebni sadržaji.
Stan je namijenjen za obiteljski život novom vlasniku/ci ili turistićki najam koji osigurava povrat uložene investicije.
Vlasništvo 1/1, završetak radova 10/2026 Godine.

Na naznačeni iznos iz oglasa odnosno na postignutu kupoprodajnu cijenu Kupac plaća agencijsku proviziju sukladno Općim uvijetima poslovanja Agencije.
U iznos provizije uključen je trošak sastava ugovora o kapari, predugovora, ugovora, pravnog savjetovanja, uknjižbe, prebacivanje brojila, odvjetničke usluge i sastav navedenih pravnih akata plaća isključivo Agencija iz iznosa provizije.

ID CODE: 2796

M & M LEGAL IMMOBILIEN
Mob: +385 98 575 313
Tel: +385 98 575 313
E-mail: info@mmlegal.hr
www.mmlegal.hr
Značajke
Vrsta
Stan
Ugovor
Prodaja
Kat
2 kat
Katovi zgrade
2
Dizalo
Ne
Površina
54 m²
Prostorije
3
Spavaće sobe
2
Kupaonice
1
Balkon
Da
Terasa
Da
Garažno mjesto, parkirna mjesta
1 na zajedničkom parkingu
Grijanje
Samostalno, zrak
Klimatizacija
Samostalno, hlađenje/grijanje
Ostale karakteristike
  • Alarmni sustav
Informacije o cijeni
Cijena
€ 174.000
Cijena po m²
3.222 €/m²
Energetska učinkovitost

Potrošnja energije

A+

Otkrijte svaki kutak nekretnine
+5
Dodatne mogućnosti

Obratite se oglašivaču

Ili