Obiteljska kuća Svetvinčenat, Svetvinčenat

€ 415.000
4
111 m²
2
Ne
Terasa

Bilješka

Oglas ažuriran 22. 01. 2026.
Opis

referenca: ID05010

Svetvinčenat, vila sa bazenom i građevinsko zemljište u srcu Istre

Prodajemo kuću s bazenom u izgradnji i građevinsko zemljište (na susjednoj parceli) sa pravomoćnom građevinskom dozvolom i projektom te priključcima za struju i vodu – sve je uključeno u cijenu. Nekretnine se nalaze u autentičnom istarskom selu, nedaleko od Svetvinčenta, poznatog po bogatoj povijesti, gastronomskoj ponudi i raznolikim manifestacijama tijekom cijele godine.
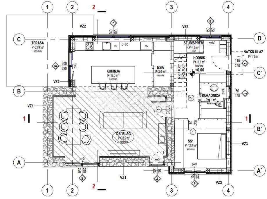
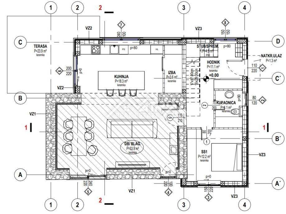
Kuća je trenutno u fazi izgradnje te će obuhvaćati prostrani dnevni boravak, blagovaonicu i kuhinju u open-space konceptu, uz dodatak jedne spavaće sobe i kupaonice u prizemlju. Unutarnje stubište će voditi na kat koji će imati dvije dodatne spavaće sobe i kupaonicu, čineći ovaj raspored savršenim za obitelji ili goste.
Eksterijer uključuje uređenu popločanu terasu od 23 m² i bazen površine 28 m² s kompletnom tehnikom. Kuća će imati podno grijanje regulirano dizalicama topline te kamin u dnevnom boravku, dok je hlađenje osigurano klima uređajima u svim prostorijama.
Savršeno mjesto za one koji vole mir, privatnost i čari tradicionalnog istarskog sela. Nekretnina je idealna i za one koji žele uživati u udobnosti vlastite kuće u Istri, kao i za investitore s obzirom na atraktivnost ovog područja za iznajmljivanje turistima.
Blizina mora, potpuna opremljenost, kao i visokokvalitetni materijali i moderne tehničke karakteristike, čine ovu nekretninu izvrsnom prilikom za ulaganje u život u Istri ili unosan posao kratkoročnog najma.

ID CODE: ID05010

Ivana Mohorović
Suradnik u procesu obuke
Mob: +385 95 370 44 46
Tel: +385 52 417 779
E-mail: ivana@matrixrealestate.hr
https://matrixrealestate.hr/

Matrix Real Estate
Voditelj ureda
Mob: +385 52 417 779
Tel: +385 52 417 779
E-mail: info@matrixrealestate.hr
https://matrixrealestate.hr/
Značajke
Vrsta
Obiteljska kuća
Ugovor
Prodaja
Katovi zgrade
1
Dizalo
Ne
Površina
111 m²
Prostorije
4
Spavaće sobe
3
Kupaonice
2
Balkon
Ne
Terasa
Da
Garažno mjesto, parkirna mjesta
2 na zajedničkom parkingu
Klimatizacija
Samostalno, hlađenje/grijanje
Informacije o cijeni
Cijena
€ 415.000
Cijena po m²
3.739 €/m²
Energetska učinkovitost
  • Godina izgradnje

    2024
  • Klima uređaj

    Samostalno, hlađenje/grijanje
  • Energetski certifikat

    Neklasificirano
Otkrijte svaki kutak nekretnine
+12
Dodatne mogućnosti

Obratite se oglašivaču

Ili