Trosobni stan Vidici, Šibenik, Šibenik

€ 253.120
3
72 m²
1
1
Ne

Bilješka

Oglas ažuriran 22. 01. 2026.
Opis

referenca: 117

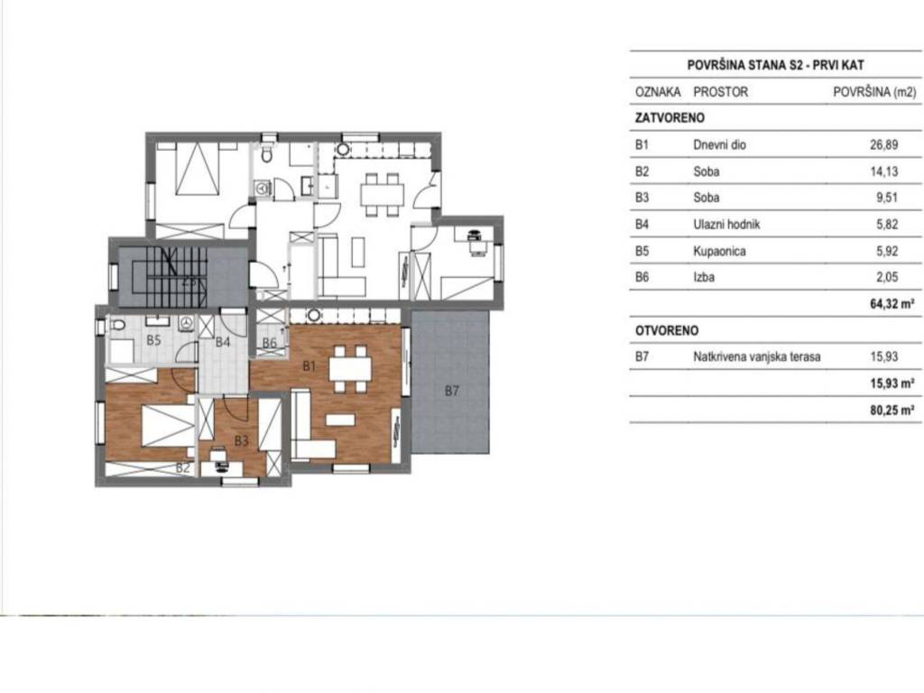
VIDICI, STAN S2, 1. KAT, P=72.32

U prodaji je kvalitetno projektiran dvosoban stan smješten na prvom katu manje stambene zgrade s ukupno 5 stanova, u mirnom i traženom kvartu Vidici u Šibeniku. Lokacija nudi savršen spoj privatnosti i blizine gradskih sadržaja – centar grada, trgovine, škole, vrtići i javni prijevoz nalaze se u neposrednoj blizini.

Stan S2 ima obračunsku površinu 72,32 m², dok je neto korisna površina 80,25 m². Prostorno je vrlo funkcionalan, s dobro osmišljenim rasporedom:

Prostrani dnevni boravak s kuhinjom i blagovaonicom (26,89 m²)
Spavaća soba 1 (14,13 m²)
Spavaća soba 2 (9,51 m²)
Kupaonica (5,92 m²)
Spremište (2,05 m²)
Natkrivena terasa (15,93 m²)

U cijenu je uključeno jedno pripadajuće parkirno mjesto.

Tehničke specifikacije:
Podno grijanje u svim prostorijama
Klima uređaji
Kvalitetna gradnja i moderan dizajn
Energetski učinkovit sustav grijanja i hlađenja

Ova nekretnina je izvrsna prilika za ugodan obiteljski život, ali i kao investicija za dugoročan najam.

Za sve dodatne informacije i dogovor oko razgleda, stojimo vam na raspolaganju.

ID CODE: 117

Andro Jakoliš
Mob: +385 99 347 3562
E-mail: andro@materra.estate
www.materra.estate
Značajke
Vrsta
Stan
Ugovor
Prodaja
Kat
1 kat
Katovi zgrade
2
Dizalo
Ne
Površina
72 m²
Prostorije
3
Spavaće sobe
2
Kupaonice
1
Balkon
Ne
Terasa
Ne
Garažno mjesto, parkirna mjesta
1 na zajedničkom parkingu
Informacije o cijeni
Cijena
€ 253.120
Cijena po m²
3.516 €/m²
Energetska učinkovitost
  • Energetski certifikat

    Neklasificirano
Otkrijte svaki kutak nekretnine
+5
Dodatne mogućnosti

Obratite se oglašivaču

Ili