Trosobni stan Rovinjsko Selo, Rovinj, Rovinj

€ 311.000
3
84 m²
1
PR
Ne
Balkon

Bilješka

Oglas ažuriran 23. 01. 2026.
Opis

referenca: 1018-1520

Rovinjsko Selo, okolica, suvremeni komfor u zelenom okruženju

Istra, Rovinjsko Selo, okolica

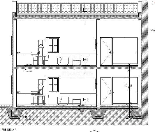
Na mirnoj lokaciji okruženoj zelenilom, svega nekoliko minuta od Rovinjskog Sela, nalazi se ovaj šarmantni stan u manjoj zgradi s dva stana. Lokacija pruža osjećaj privatnosti i prirodnog mira, dok blizina Rovinja i Ipsilon čine ga izvrsno povezanom točkom u srcu Istre.

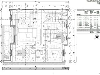
Na 84 m² raspoređeno je sve potrebno za ugodan život: tri spavaće sobe, kupaonica, dodatni WC, te prostrani dnevni dio s izlazom na natkrivenu terasu – idealnu za jutarnju kavu uz miris lavande i borova.

Stan ima podno grijanje, klimatizaciju i parkirno mjesto, a useljenje je predviđeno za sezonu 2026.
Mjesto gdje priroda i suvremeni život dišu istim ritmom – vaš miran kutak blizu Rovinja čeka vas.

ID CODE: 1018-1520
Značajke
Vrsta
Stan
Ugovor
Prodaja
Kat
Prizemlje
Katovi zgrade
1
Dizalo
Ne
Površina
84 m²
Prostorije
3
Spavaće sobe
3
Kupaonice
1
Balkon
Da
Terasa
Ne
Klimatizacija
Samostalno, hlađenje/grijanje
Informacije o cijeni
Cijena
€ 311.000
Cijena po m²
3.702 €/m²
Energetska učinkovitost
  • Klima uređaj

    Samostalno, hlađenje/grijanje
  • Energetski certifikat

    Neklasificirano
Otkrijte svaki kutak nekretnine
+5
Dodatne mogućnosti

Obratite se oglašivaču

Ili