Jednosobni stan Trogir, Trogir

€ 164.900
1
47 m²
PR
Ne
Terasa

Bilješka

Oglas ažuriran 12. 04. 2026.
Opis

referenca: 857

Jednosobni stan+parkirno mjesto

Posredujemo u prodaji jednosobnog stana u novogradnji, površine 47m2 s parkirnim mjestom.
Rijeć je o novogradnji modernog dizajna čija je izgradnja upravo započela, a usljenje je planirano početkom 2027.godine.

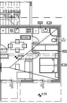
Stan se sastoji od dnevnog boravka povezanog s kuhinjom i blagovaonicom, spavaće sobe, kupaonice te prostrane terase i privatnog vrta.
Mogucnost sudjelovanja u odabiru keramike i pločica, te ostale opreme u stanu tokom gradnje.
Stan je opremljen klima uredajem i podnim grijanjem u wc-u.

U neposrednoj blizini škole, vrtića, trgovina i svih važnih sadržaja, u uređenom dijelu grada na svega 800 metara udaljenosti od povijesne jezgre ova nekretnina je odličan izbor za obiteljski život ili kao investicija za budućnost.

Moderna arhitektura, kvalitetni materijali, funkcionalan raspored prostorija s brojnim mogućnostima za odmor i privatnost daju dodatnu vrijednost ovoj modernoj novogradnji.

Za više informacija, detalja o projektu, slobodno nas kontaktirajte.

ID CODE: 857

ALL SERVICE d.o.o.
Mob: 0952016994
Tel: 014002709
E-mail: info@allservice.hr
www.allservice.hr
Značajke
Vrsta
Stan
Ugovor
Prodaja
Kat
Prizemlje
Katovi zgrade
3
Dizalo
Ne
Površina
47 m²
Prostorije
1
Spavaće sobe
1
Balkon
Ne
Terasa
Da
Garažno mjesto, parkirna mjesta
1 na zajedničkom parkingu
Klimatizacija
Samostalno, hlađenje/grijanje
Informacije o cijeni
Cijena
€ 164.900
Cijena po m²
3.509 €/m²
Energetska učinkovitost
  • Godina izgradnje

    2026
  • Klima uređaj

    Samostalno, hlađenje/grijanje
  • Energetski certifikat

    Neklasificirano
Otkrijte svaki kutak nekretnine
+2
Dodatne mogućnosti

Obratite se oglašivaču

Ili