Građevinsko zemljište za Prodaja

€ 170.000
690 m²

Bilješka

Oglas ažuriran 28. 01. 2026.
Opis

referenca: 519

Draga Bašćanska, građevinsko zemljište sa građevinskom dozvolom! ID 519

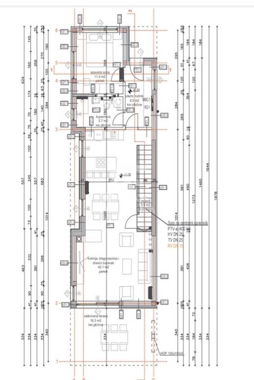
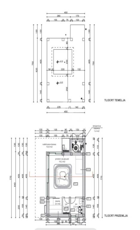
Draga Bašćanska, na prodaju je građevinsko zemljište površine 690m2 sa ishodovanom građevinskom dozvolom za gradnju vile sa bazenom i pomoćnim objektom. Parcela je pravilnog oblika uz asfaltiranu cestu gdje su osigurani priključci struje i vode. Građevinsko zemljište se nalazi na mirnoj lokaciji svega 3500m od mora i popratnih sadržaja. Dokumentacija uredna!!

ID CODE: 519

Jelena Andrić
Mob: +385 99 3993 088
Tel: +385 51 678 696
E-mail: info@alfaelmas.com
www.alfaelmas.com
Značajke
Ugovor
Prodaja
Vrsta
Građevinsko zemljište
Površina
690 m²
Informacije o cijeni
Cijena
€ 170.000
Cijena po m²
246 €/m²
Tlocrt
Otkrijte svaki kutak nekretnine
+11
Dodatne mogućnosti

Obratite se oglašivaču

Ili