Trosobni stan Novi Vinodolski, Novi Vinodolski

€ 215.845
3
61 m²
1
2
Ne

Bilješka

Oglas ažuriran 30. 01. 2026.
Opis

referenca: 4383

NOVI VINODOLSKI, novogradnja, dvosobni s dnevnim, parking

Na izvrsnoj lokaciji u Novom Vinodolskom prodajemo stan u novogradnji čiji se završetak očekuje do sezone 2025 godine. Zgrada se nalazi na svega 270 m zračne udaljenosti od mora.
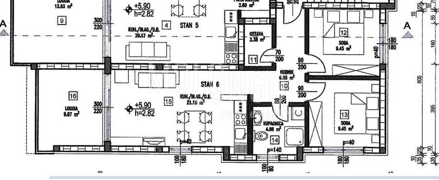
Stan se sastoji od hodnika, kupaonice, ostave, dvije spavaće sobe te dnevnog boravka s kuhinjom s izlazom na prostranu lođu.
Stanu u vlasništvo pripada i jedno parkirno mjesto.
Kvalitetna gradnja i materijali, provjeren investitor.
Stan je u sustavu PDV-a te možete očekivati povrat pola iznosa !
Cijena u ovoj fazi nije fiksna ali joj treba pridodati cijenu parkirnog mjesta (u koeficijentu 0,25 te okućnice za stanove u prizemlju).
Nikako ne propustite ovu odličnu priliku kako za rješavanje stambenog pitanja kao i za odličnu investiciju u svrhu turističkog najma !
U startu rješavamo suglasnosti vezane za turistički najam !

Nazovite agenta, postavite sva moguća pitanja :), dogovorite razgled i ne propustite ovu odličnu priliku !

ID CODE: 4383

Molo Longo nekretnine
Mob: +385 51 858 544
Tel: +385 51 858 544
E-mail: info@mololongorealestate.com
www.mololongorealestate.com
Značajke
Vrsta
Stan
Ugovor
Prodaja
Kat
2 kat
Dizalo
Ne
Površina
61 m²
Prostorije
3
Spavaće sobe
2
Kupaonice
1
Balkon
Ne
Terasa
Ne
Garažno mjesto, parkirna mjesta
1 na zajedničkom parkingu
Klimatizacija
Samostalno, hlađenje/grijanje
Informacije o cijeni
Cijena
€ 215.845
Cijena po m²
3.538 €/m²
Energetska učinkovitost
  • Godina izgradnje

    2025
  • Klima uređaj

    Samostalno, hlađenje/grijanje
  • Energetski certifikat

    Neklasificirano
Otkrijte svaki kutak nekretnine
+15
Dodatne mogućnosti

Obratite se oglašivaču

Ili