Trosobni stan Ladrovići, Poreč, Žbandaj, Poreč

€ 200.000
3
64 m²
1
1
Ne

Bilješka

Oglas ažuriran 30. 01. 2026.
Opis

referenca: 3457

ISTRA, POREČ novogradnja u okolici Poreča

Samo 8 km od Poreča dobili smo u ponudu novogradnju koja je sada u završnoj fazi .

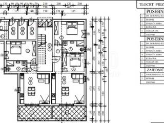
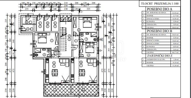
STAN D

Stan se sastoji od dvije spavaće sobe, dnevnog boravka, kuhinje, hodnika, kupaonice, terase, ostave.

Svi podovi u stanovima oblažu se keramičkim pločicama nabavne cijene do 25,00 €/m2.
U sobama se izvodi laminat nabavne cijene do 25,00 €/m2.
Zidovi kupaonica i kuhinje se oblažu keramičkim pločicama nabavne cijene do 25,00 €/m2.
Ulazna vrata u stanove su protuprovalna i protupožarna. Sobna vrata su puna, furnirana.
Sanitarni uređaji , tuševi sa kanalicama, eventualno kabinama, po izboru kupca.
Svaka stambena jedinica ima unutarnje instalacije priključka na telefon, zemaljsku i satelitsku antenu u dnevnom boravku i sobama.
Grijanje i hlađenje stanova riješeno je klima uređajima u dnevnom boravku i sobama
( 2x2,5 kw + 1x 4,5 kw).
U kupaonama se postavlja podno grijanje mrežicom s termostatom.

Moguća kupovina kreditom banke.

Za više informacija nazovite agenta.

ID CODE: 3457

Mirjana Vlahović
Agent s licencom
Mob: +385 95 5161 641
Tel: +385 52 774 199
E-mail: mirjana.vlahovic@mololongorealestate.com
www.mololongorealestate.com

Zoran Stupar
Agent s licencom
Mob: +385 99 5705 551
Tel: +385 52 774 199
E-mail: zoran.stupar@mololongorealestate.com
www.mololongorealestate.com
Značajke
Vrsta
Stan
Ugovor
Prodaja
Kat
1 kat
Dizalo
Ne
Površina
64 m²
Prostorije
3
Spavaće sobe
2
Kupaonice
1
Balkon
Ne
Terasa
Ne
Garažno mjesto, parkirna mjesta
1 na zajedničkom parkingu
Grijanje
Samostalno, zrak
Klimatizacija
Samostalno, hlađenje/grijanje
Informacije o cijeni
Cijena
€ 200.000
Cijena po m²
3.125 €/m²
Energetska učinkovitost
  • Godina izgradnje

    2024
  • Grijanje

    Samostalno, zrak
  • Klima uređaj

    Samostalno, hlađenje/grijanje
  • Energetski certifikat

    Neklasificirano
Otkrijte svaki kutak nekretnine
+9
Dodatne mogućnosti

Obratite se oglašivaču

Ili