Građevinsko zemljište za Prodaja

€ 295.000
568 m²

Bilješka

Oglas ažuriran 12. 04. 2026.
Opis

referenca: EI-7369

Građevinsko zemljište s projektnom dokumentacijom

Građevinsko zemljište u Njivicama, otok Krk.

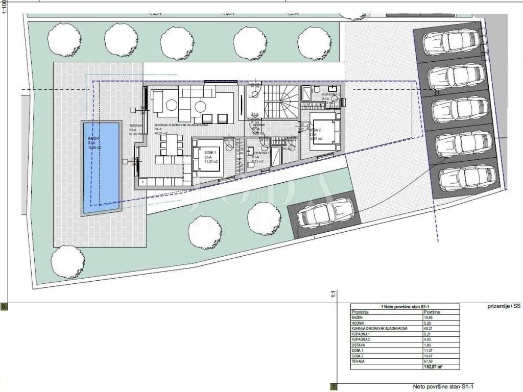
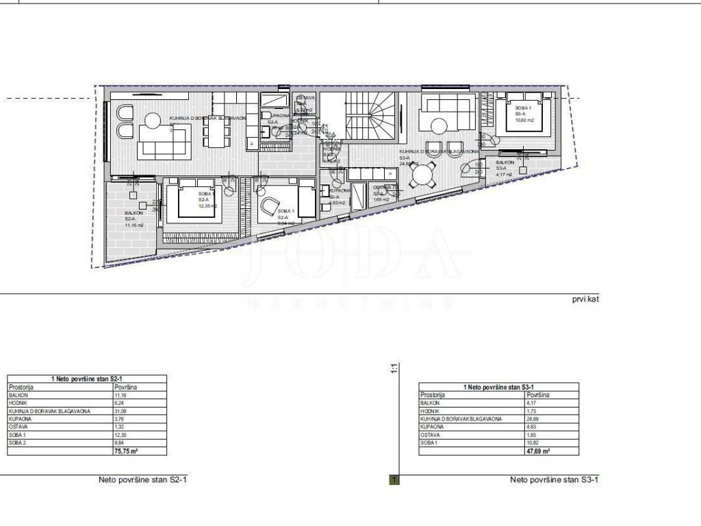
Zemljište se prodaje s kompletnom projektnom dokumentacijom za izgradnju stambene građevine sa četiri stambene jedinice, katnosti prizemlje i dva kata, sa krovnom terasom. Predana je dokumentacija za građevinsku dozvolu. Infrastruktura (struja, voda, internet) - na 20 m od terena.
Lijepa lokacija, udaljena oko 500 metara plaže. S gornjih katova se očekuje pogled na more.
Za sve informacije i dogovor razgledavanja dostupni smo na broju 0994440660 ili u poslovnici Malinska na adresi Dubašljanska 111.

ID KOD AGENCIJE: EI-7369
Značajke
Ugovor
Prodaja
Vrsta
Građevinsko zemljište
Površina
568 m²
Informacije o cijeni
Cijena
€ 295.000
Cijena po m²
519 €/m²
Otkrijte svaki kutak nekretnine
+4
Dodatne mogućnosti

Obratite se oglašivaču

Ili