Trgovina - Poslovni prostor za Prodaja

€ 400.000
231 m²

Bilješka

Oglas ažuriran 30. 04. 2026.
Opis

referenca: I29782

POSLOVNI PROSTOR, PRODAJA, SESVETE, RESTORAN (143m2) +CAFFE BAR (88,19m2), Varaždinska cesta
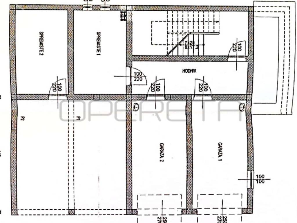
U prodaji se nalazi opremljen restoran s cca 60 sjedećih mjesta + natkrivena terasa. Sastoji se od prostora gdje su smješteni šank i prostor za usluživanje gostiju, kuhinje, sanitarnih čvorova, prostorija za izradu pizze, vanjske terase te pečenjare. Zajedno se s njima prodaje i poslovni prostor u suterenu zgrade koji je namijenjen kao caffe bar ukupne površine 71m2 + garaža (spremište) od 17m2. Caffe bar je trenutno u funkciji stambenog dijela za radnike. Vlasništvo uredno.
Značajke
Ugovor
Prodaja
Površina
231 m²
Garažno mjesto, parkirna mjesta
1 na zajedničkom parkingu
Informacije o cijeni
Cijena
€ 400.000
Cijena po m²
1.732 €/m²
Energetska učinkovitost

Potrošnja energije

A

Otkrijte svaki kutak nekretnine
+22
Dodatne mogućnosti

Obratite se oglašivaču

Ili