Trosobni stan novo, prizemlje, Kman - Visoka - Sućidar, Split

€ 331.000
3
58 m²
1
PR
Da
Balkon

Bilješka

Oglas ažuriran 26. 04. 2026.
Opis

referenca: EK-2656009

Stan, Split, novogradnja

Split, Visoka, suvremeni projekt dvije arhitektonski usklađene zgrade, prizemlje i tri kata, smještene u mirnoj ulici, lokacija spaja privatnost i praktičnost: u blizini su škola, vrtić, trgovine i sportski sadržaji, te brzi pristup glavnim prometnicama, uzvišen položaj donosi i lijepi pogled. Eksterijer je oblikovan u kombinaciji travertin fasade, prozirnih staklenih ograda, aluminijskih kliznih roleta i otvora. Uređeni pristupi, hortikultura, ambijentalna led rasvjeta i vanjski video nadzor osiguravaju visoku razinu estetike i sigurnosti. Stanovi su projektirani s naglaskom na funkcionalne tlocrte, odlično prirodno osvjetljenje i izbor premium materijala.
U ponudi stanovi različitih kvadratura. Kvalitena oprema u stanovima, podno grijanje u kupaonicama, vanjski video nadzor, zgrada ima lift. Ishođena pravomoćna građevinska dozvola, predviđeni završetak radova: 12/2027.godine.
Garažna mjesta po cijeni od 35.000€.
IZ PONUDE IZDVAJAMO: DVOSOBAN STAN:
PRIZEMLJE: B5, 58,06m2=331.000€.
Uvjeti kupoprodaje/plaćanje: 50% pri potpisu predugovora, 30% po završetku betonskih radova, 20% po useljenju.
Značajke
Vrsta
Stan | Puno vlasništvo | Elegantna klasa nekretnine
Ugovor
Prodaja | Prihodovna nekretnina
Kat
Prizemlje
Katovi zgrade
3
Dizalo
Da
Površina
58 m²
Prostorije
3
Spavaće sobe
2
Kuhinja
Otvorena kuhinja
Kupaonice
1
Namješteno
Ne
Balkon
Da
Terasa
Ne
Garažno mjesto, parkirna mjesta
1 u garaži, 1 na zajedničkom parkingu
Grijanje
Samostalno, radijatori, napajanje električnom energijom
Klimatizacija
Samostalno, hlađenje/grijanje
Udaljenost od mora
1.200 m
Ostale karakteristike
  • Optičko vlakno
  • Orijentacija prema van
  • Protuprovalna vrata
  • Vanjska stolarija s trostrukim staklom / PVC
  • Jedan tv sustav
  • Video portafon
Detalji površine

Stambeni prostor

Kat
Prizemlje
Površina
58,0 m²
Koeficijent
100%
Vrsta površine
Glavni
Komercijalna površina
58,0 m²
Informacije o cijeni
Cijena
€ 331.000
Cijena po m²
5.707 €/m²
Pojedinosti o troškovima
Troškovi etažiranja
Bez naknada za etažno vlasništvo
Energetska učinkovitost

Potrošnja energije

≥ 250 kWh/m² godinaA+

Tlocrt
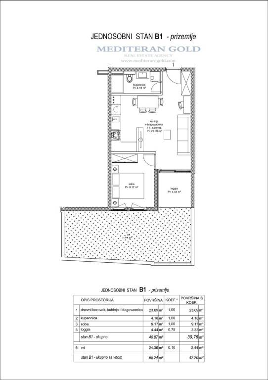
B1, prizemlje, 42,20m2, 1-sob,253.000€-ink
Otkrijte svaki kutak nekretnine
+16
Dodatne mogućnosti

Obratite se oglašivaču

Ili