Obiteljska kuća Ulica Mate Vlašića 20, Centar - Gulići, Poreč

€ 790.000
3
182 m²
2
Ne
Terasa
Namješteno

Bilješka

Oglas ažuriran 10. 03. 2026.
Opis

referenca: 1056

Poreč - moderna kuća s bazenom. BLIZINA MORA!

Poreča, okolica - moderna kuća s bazenom na samo 600 metara od mora.

U jednom šarmantnom turističkom mjestu u okolici Poreča na prodaju je prekrasna moderna kuća ukupne površine 182 m2 smještena na okućnici od 549 m2.

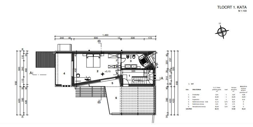
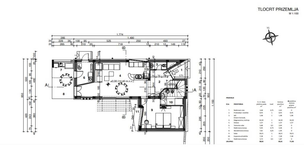
Kuća se prostire na dvije etaže. U prizemlju su se smjestili dnevni boravak s kuhinjom i blagovaonom otvorenog koncepta, jedna prostrana spavaća soba sa vlastitom kupaonom te izlazom u vrt i gostinjski WC. Dok na katu se nalazi još jedna spavaća soba također sa vlastitom kupaonom i izlazom na terasu.

Dnevni prostor nekretnine vodi u lijepi vrt zasađeni mediteranskim biljem koji smjestio bazen sa zonom za sunčanje, natkrivenu vanjsku kuhinju, te dva parkirna mjesta.

Kuća je opremljena sa video nadzorom te alarmom, podnim grijanjem na dizalicu topline i solarnim kolektorima za toplu vodu.

Nekretnina se prodaje potpuno kvalitetno namještena.

Odlična kuća, smještena u blizini mora i svih sadržaja idealna je za uživanje i odmor!

Provizija agencije za kupca iznosi 3% + PDV (sveukupno 3,75%) i plaća se prilikom potpisivanja predugovora. Ako predugovor nije sklopljen, agencijska provizija plaća se odmah po sklapanju glavnog ugovora. Obilazak nekretnine moguć je nakon potpisivanja ugovora o posredovanju.

Agencija ne odgovara za eventualne greške, omaške ili netočnosti u tekstu i opisu oglasa.

ID KOD AGENCIJE: 1056

Toni Kristijan
Mob: +385 91 556 2470
Tel: +385 91 556 2470
E-mail: toni@sanmartin-realestate.com
www.sanmartin-realestate.com
Značajke
Vrsta
Obiteljska kuća | Puno vlasništvo
Ugovor
Prodaja
Kat
1
Dizalo
Ne
Površina
182 m² | poslovni prostor 729 m²
Prostorije
3
Spavaće sobe
2
Kupaonice
2
Namješteno
Da
Balkon
Ne
Terasa
Da
Garažno mjesto, parkirna mjesta
2 na zajedničkom parkingu
Grijanje
Centralno, podno grijanje
Klimatizacija
Samostalno, hlađenje/grijanje
Udaljenost od mora
600 m
Ostale karakteristike
  • Alarmni sustav
  • Konoba
  • Ostava
  • Protuprovalna vrata
  • Solarno grijanje vode
  • Bazen
Detalji površine

Stambeni prostor

Kat
1
Površina
182,0 m²
Koeficijent
100%
Vrsta površine
Glavni
Komercijalna površina
182,0 m²

Zemljište

Kat
Prizemlje
Površina
547,0 m²
Koeficijent
100%
Vrsta površine
Dodatno
Komercijalna površina
547,0 m²
Informacije o cijeni
Cijena
€ 790.000
Cijena po m²
1.084 €/m²
Energetska učinkovitost
  • Godina izgradnje

    2019
  • Stanje

    Novo / U izgradnji
  • Grijanje

    Centralno, podno grijanje
  • Klima uređaj

    Samostalno, hlađenje/grijanje
Tlocrt
tlocrt 1. kata
tlocrt prizemlja
Otkrijte svaki kutak nekretnine
+23
Dodatne mogućnosti

Obratite se oglašivaču

Ili