map icon

Dvosobni stan novo, Primošten

Primošten
€ 390.000
2
80 m²
2

Bilješka

Oglas ažuriran 19. 02. 2026.
Opis

referenca: 5473/30b

Dvosobni apartman s pogledom na more

Na izvrsno lokaciji, iznad Primoštenu, u sklopu manje novoizgrađene zgrade, prodaje se prostrani dvosoban apartman.

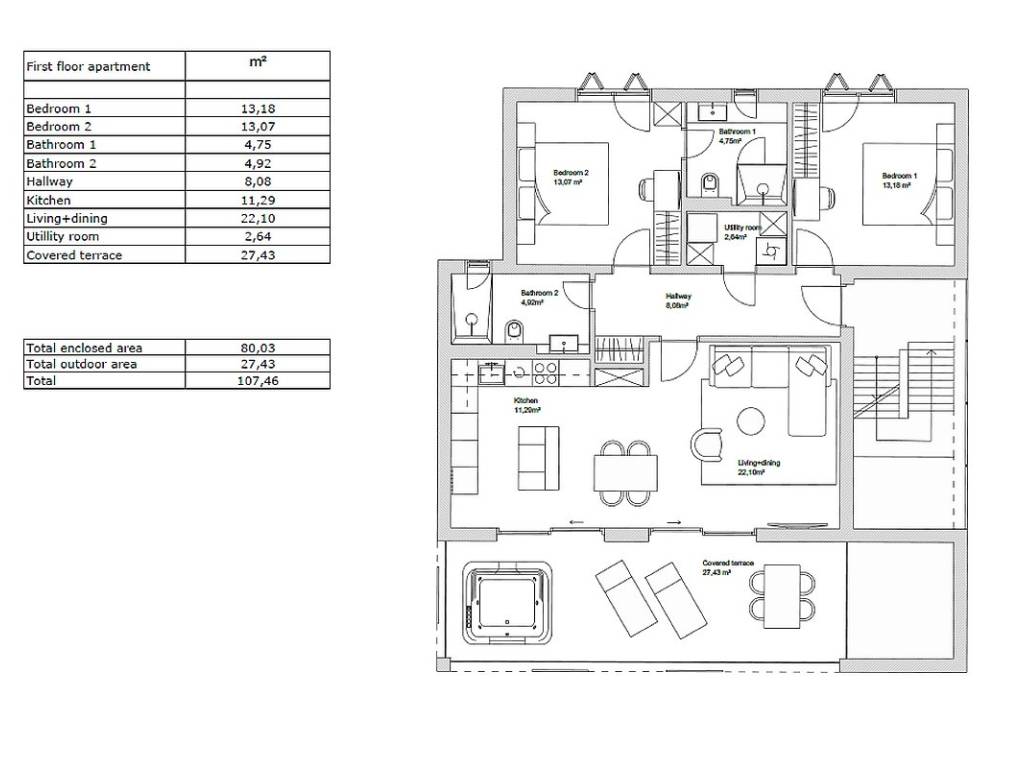
Nalazi se na drugoj etaži te se s njega pruža otvoren pogled na more. Apartman se sastoji od dvije spavaće sobe od kojih jedna ima svoju kupaonicu. Nadalje sadrži još jenu kupaonicu, spremu te dnevni prostor otvorenog koncepta koji objedinjuje kuhinju, blagovaonicu i dnevni boravak. Ukupna stambena površina apartmana iznosi 80m2 dok natkrivena terasa obuhvaća 27m2.

Ovaj je apartman izvrsna investicija za turističko iznajmljivanje ali također i za obiteljski boravak s obzirom na smještaj daleko od vreve a opet dovoljno blizu svim relevantnim sadržajima.

Značajke
Vrsta
Stan
Ugovor
Prodaja
Površina
80 m²
Prostorije
2
Kupaonice
2
Informacije o cijeni
Cijena
€ 390.000
Cijena po m²
4.875 €/m²
Energetska učinkovitost
  • Stanje

    Novo / U izgradnji
  • Energetski certifikat

    Oslobođeno
Otkrijte svaki kutak nekretnine
+6
Dodatne mogućnosti

Obratite se oglašivaču

Ili