map icon

Dvosobni stan novo, Primošten

Primošten
€ 267.000
2
67 m²
1

Bilješka

Oglas ažuriran 19. 02. 2026.
Opis

referenca: 2046/78

Jedinstveni stan u novogradnji s pogledom na more

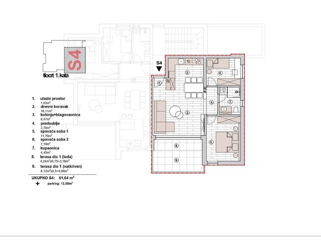
Jedinstveni dvosobni stan koji se nalazi na prvom katu manje stambene zgrade s ukupno sedam stanova, raspoređenih kroz četiri etaže. Ovaj stan obuhvaća 66,64m2 stambene površine, te stanu također pripada lođa koja je dijelom natkrivena te se prostire na 12,36m2.



Stan uključuje vlastito parkirno mjesto opremljeno punionicom za električna vozila što omogućuje moderni način života. Pri gradnji su korišteni visokokvalitetni materijali, čime se osigurava vrhunska razina komfora i luksuza. Za udobnost i sigurnost pri boravku u nekretnini osigurano je podno grijanje koje je raspoređeno po kupatilu i otvorenom dnevnom prostoru, protuprovalna vrata, električne rolete, walk-in tuš kabine Udaljenost nekretnine od svog potrebnog sadržaja za svakodnevni život iznosi svega nekoliko minuta.



Unutrašnjost stana sastoji se od ulaznog hodnika, otvorenog koncepta koji zauzima dnevni prostor i blagovaonicu, kuhinja, moderno opremljene kupaonice, te dvije spavaće sobe. Iz dnevnog prostora omogućen je izlaz na lođu s koje se pruža pogled na more i grad.



Završetak radova planiran je za zimu 2026. godine.

Značajke
Vrsta
Stan | Luksuzna nekretnina
Ugovor
Prodaja
Površina
67 m²
Prostorije
2
Kupaonice
1
Informacije o cijeni
Cijena
€ 267.000
Cijena po m²
3.985 €/m²
Energetska učinkovitost
  • Stanje

    Novo / U izgradnji
  • Energetski certifikat

    Oslobođeno
Otkrijte svaki kutak nekretnine
+5
Dodatne mogućnosti

Obratite se oglašivaču

Ili