map icon

Dvosobni stan novo, Primošten

Primošten
€ 323.000
2
74 m²
1

Bilješka

Oglas ažuriran 19. 02. 2026.
Opis

referenca: 2046/79

Izuzetan stan s pogledom na more unutar novogradnje

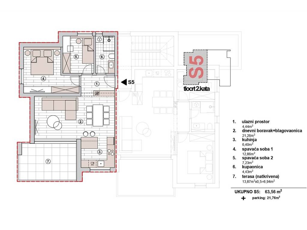
Izuzetni dvosobni stan koji se nalazi na drugom katu stambene zgrade s ukupno sedam stanova, raspoređenih na četiri etaže. Ovaj izuzetni stan obuhvaća 74,45 m2 stambene površine, te stanu također pripada lođa koja je dijelom natkrivena te se prostire na 13,87m2.



Unutrašnjost stana sastoji se od ulaznog hodnika, moderno opremljene kupaonice, dvije spavaće sobe, kuhinje te otvorenog koncepta dnevnog boravka s blagovaonicom. Iz dnevnog prostora izlazi se na lođu s koje se pruža pogled na more i grad.



Stan uključuje garažno mjesto opremljeno punionicom za električna vozila, što doprinosi modernom načinu života. Pri gradnji su korišteni visokokvalitetni materijali, čime se osigurava vrhunska razina komfora i trajnosti. Za udobnost i sigurnost pri boravku u nekretnini osigurano je podno grijanje koje je raspoređeno po nekretnini odnosno kupatilu i dnevnom prostoru, protuprovalna vrata, električne rolete, walk-in tuš kabine Udaljenost nekretnine od svog potrebnog sadržaja za svakodnevni život iznosi svega nekoliko minuta.



Završetak radova planiran je za zimu 2026. godine.

Značajke
Vrsta
Stan | Luksuzna nekretnina
Ugovor
Prodaja
Površina
74 m²
Prostorije
2
Kupaonice
1
Garažno mjesto, parkirna mjesta
1 u garaži, 1 na zajedničkom parkingu
Informacije o cijeni
Cijena
€ 323.000
Cijena po m²
4.365 €/m²
Energetska učinkovitost
  • Stanje

    Novo / U izgradnji
  • Energetski certifikat

    Oslobođeno
Otkrijte svaki kutak nekretnine
+5
Dodatne mogućnosti

Obratite se oglašivaču

Ili