map icon

Trosobni stan novo, Primošten

Primošten
€ 630.000
3
124 m²
2

Bilješka

Oglas ažuriran 19. 02. 2026.
Opis

referenca: 2046/81

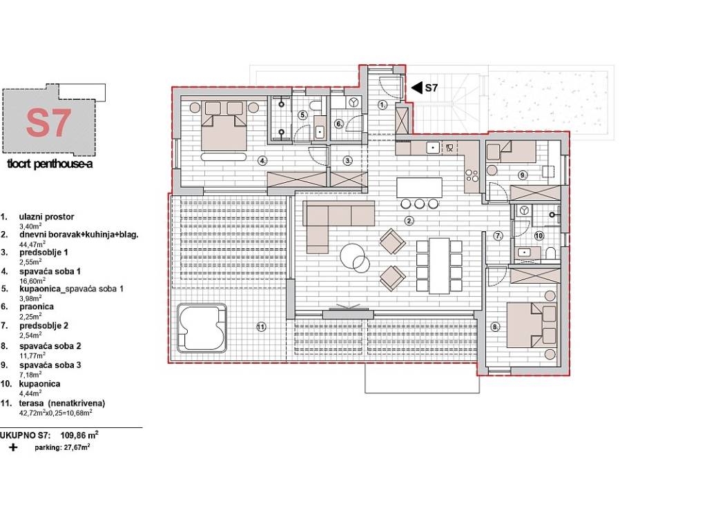
Luksuzni penthouse s panoramskim pogledom na more unutar novogradnje

Luksuzni penthouse na trećem katu moderne stambene zgrade, prostire se na 123,70 m stambene površine, dok prostrana terasa od 42,72 m nudi panoramski pogled na more, stvarajući idealan ambijent za opuštanje i uživanje u mediteranskom načinu života.



Zgrada je orijentirana prema jugu, što omogućuje obilje prirodnog svjetla tijekom cijelog dana, naglašavajući svježinu i prozračnost prostora. Unutrašnjost stana pažljivo je planirana ulazni hodnik vodi do zasebne prostorije predviđene za praonicu, a centralni dio čini prostrani open-space koncept kuhinje, blagovaonice i dnevnog boravka. Stan ima dvije udobne spavaće sobe, moderno opremljeno kupatilo, te master spavaću sobu s vlastitom kupaonicom i direktnim izlazom na terasu s luksuznim jacuzzijem.



U cijenu je uključeno garažno parkirno mjesto opremljeno punionicom za električna vozila, što osigurava dodatnu pogodnost za suvremeni način života. Korišteni su vrhunski građevinski materijali i oprema visoke kvalitete, čime je postignuta visoka razina komfora i estetike.



Zgrada se ističe modernom arhitekturom i luksuznim detaljima podno grijanje u dnevnim prostorima i kupaonicama, električne rolete, protuprovalna vrata, walk-in tuš kabine te brojni drugi elementi koji pridonose udobnosti i sigurnosti stanovanja. Svi sadržaji potrebni za svakodnevni život nalaze se u neposrednoj blizini.



Dovršetak gradnje predviđen je za zimu 2026. godine.

Značajke
Vrsta
Stan | Luksuzna nekretnina
Ugovor
Prodaja
Površina
124 m²
Prostorije
3
Kupaonice
2
Garažno mjesto, parkirna mjesta
1 u garaži, 1 na zajedničkom parkingu
Ostale karakteristike
  • Bazen
Informacije o cijeni
Cijena
€ 630.000
Cijena po m²
5.081 €/m²
Energetska učinkovitost
  • Stanje

    Novo / U izgradnji
  • Energetski certifikat

    Oslobođeno
Otkrijte svaki kutak nekretnine
+11
Dodatne mogućnosti

Obratite se oglašivaču

Ili