Obiteljska kuća Sošići, Kanfanar, Kanfanar

€ 680.000
4
138 m²
2
Ne
Terasa

Bilješka

Oglas ažuriran 04. 03. 2026.
Opis

referenca: 225

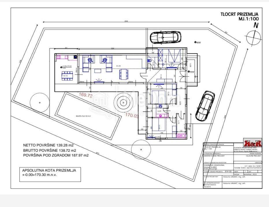
Kuća s bazenom,140m2,nova, mirna lokacija

Prodajemo kuću s bazenom u zapadnoj Istri, stambene površine od 138 m2. Kuća se sastoji od hodnika, dnevnog boravka sa kuhinjom i blagavaonicom, tri spavaće sobe, dvije kupaonice, ostave, natkrivene terase i nenatkrivene terase uz bazen površine 32m2. Kuća je pri završetku uređenja. Izlaz na bazen je iz dnevnog boravka i kuhinje. Grijanje i hlađenje riješeno je sa dizalicom topline. Predviđeno je i podno grijanje. Kuća se prodaje sa kompletno završenim unutrašnjim i vanjskim uređenjem, nenamještena. Kuća je smještena na mirnoj lokaciji okružena zelenilom, u blizini svih bitnih sadržaja za život. Nalazi se u blizini Rovinja, Limskog kanala, autoceste, vrhunskih ribljih restorana, vinarija i biciklističkih staza. Kuća je interesantna i za odmor i stanovanje a tako i za najam u turističke svrhe. Blizina svih sadržaja, atraktivna lokacija, interesantan projekat kuće, jamči veliku popunjenost tijekom cijele godine.

Kontakt:
Nevio
0989842659

ID CODE: 225

Nevio Meden
Agent s licencom
Mob: 00385989842659
E-mail: nevio@medom-nekretnine.com
www.medom-nekretnine.com
Značajke
Vrsta
Obiteljska kuća
Ugovor
Prodaja
Dizalo
Ne
Površina
138 m²
Prostorije
4
Spavaće sobe
3
Kupaonice
2
Balkon
Ne
Terasa
Da
Garažno mjesto, parkirna mjesta
2 na zajedničkom parkingu
Klimatizacija
Samostalno, hlađenje/grijanje
Informacije o cijeni
Cijena
€ 680.000
Cijena po m²
4.928 €/m²
Energetska učinkovitost

Potrošnja energije

A

Otkrijte svaki kutak nekretnine
+20
Dodatne mogućnosti

Obratite se oglašivaču

Ili