Višeobiteljska kuća Poreč, Centar - Gulići, Poreč

€ 450.000
4
136 m²
3
Ne
Terasa

Bilješka

Oglas ažuriran 28. 04. 2026.
Opis

referenca: 2125

Moderna kuća s bazenom u Istri – u okolici Poreča

MODERNA KUĆA U IZGRADNJI S BAZENOM U OKOLICI POREČA – POGLED NA ZELENILO I MORE

U mirnom i ugodnom obiteljskom naselju, okruženom zelenilom, modernim novogradnjama i lijepim istarskim kućama, smještena je ova kvalitetna moderna kuća katnica u izgradnji, osmišljena kao dugoročno funkcionalan dom, ali i kao sigurna investicija s odličnim potencijalom.
Lokacija nudi privatnost i mir, a istovremeno brzu i jednostavnu povezanost s morem i gradom. Planirani završetak gradnje je lipanj 2026. godine, a nekretnina će biti isporučena ključ u ruke, s uređenim okolišem i urednom dokumentacijom.

OSNOVNE KARAKTERISTIKE NEKRETNINE
• Površina kuće: 136 m²
• Površina parcele: 469 m²
• Okućnica s bazenom 8 x 4 m
• 3 spavaće sobe
• 3 kupaonice
• 2 parkirna mjesta
• Podno grijanje u cijeloj kući
• Klima uređaji u svim prostorijama

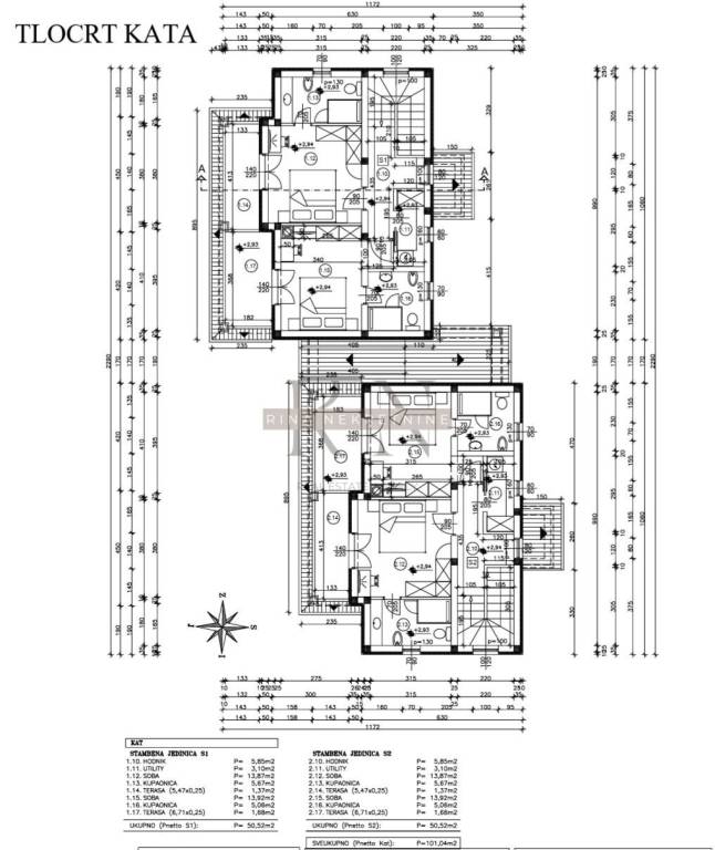
RASPORED PROSTORA
PRIZEMLJE
Prizemlje kuće pažljivo je osmišljeno kao ugodan i funkcionalan dnevni prostor te obuhvaća:
• ulazni prostor
• open space dnevni boravak s kuhinjom i blagovaonicom
• tehničku sobu / spremište / vešeraj
• wc
• spavaću sobu s vlastitom kupaonicom
Iz dnevnog boravka i spavaće sobe omogućen je izlaz na popločenu, natkrivenu terasu, vrt i bazen, čime se postiže prirodna povezanost interijera i vanjskog prostora.
KAT
Unutarnje stepenice vode na kat gdje se nalaze:
• dvije spavaće sobe, svaka s vlastitom kupaonicom
• izlaz na terasu iz obje sobe
• s terasa se pruža lijep pogled na zelenilo i more

VANJSKI PROSTOR
Okućnica je funkcionalno i estetski uređena te uključuje:
• bazen dimenzija 8 x 4 m
• sunčalište
• uređeni vrt
• dva privatna parkirna mjesta
Vanjski prostor zamišljen je kao mjesto za opuštanje, druženje i boravak na otvorenom tijekom cijele godine.
ARHITEKTURA I KVALITETA GRADNJE
Kuća je katnica modernog dizajna, projektirana s naglaskom na kvalitetnu gradnju, čiste linije i bezvremensku estetiku. Skladno se uklapa u okruženje.

LOKACIJA I OKRUŽENJE
Nekretnina se nalazi u mirnom naselju s pretežno obiteljskim kućama:
• cca 4 km do uređenih plaža, do kojih se vrlo lako dolazi i biciklima
• cca 5 km do centra Poreča
• blizina svih važnih sadržaja, uz zadržan osjećaj mira i privatnosti

ZAŠTO OVA NEKRETNINA
• mirno obiteljsko okruženje
• kvalitetna novogradnja
• moderan, ali nenametljiv dizajn
• bazen i okućnica
• pogled na zelenilo i more
• odličan omjer privatnosti i blizine sadržaja
Rijetka prilika za kupce koji traže kvalitetnu kuću u okolici Poreča, bez kompromisa između mira, funkcionalnosti i lokacije.
Pametan izbor danas – sigurna vrijednost sutra.

DODATNE INFORMACIJE
• završetak gradnje i uređenje okoliša do lipnja 2026.
• podno grijanje i klima uređaji u svim prostorijama
• uredni vlasnički i građevinski papiri
• nekretnina idealna za stanovanje ili investiciju

ZA VIŠE INFORMACIJA I RAZGLED
Za sve dodatne informacije, tlocrte, tehničke specifikacije ili dogovor oko razgleda, slobodno kontaktirajte:

Mobitel / Viber / WhatsApp: +385 91 2848 310, VIŠNJA

ID CODE: 2125

Višnja Broqi
Agent s licencom
Mob: +385 91 284 8310
Tel: +385 1 638 2643
E-mail: info@rina-nekretnine.hr
www.rina-nekretnine.hr
Značajke
Vrsta
Višeobiteljska kuća
Ugovor
Prodaja
Katovi zgrade
1
Dizalo
Ne
Površina
136 m²
Prostorije
4
Spavaće sobe
3
Kupaonice
3
Balkon
Ne
Terasa
Da
Garažno mjesto, parkirna mjesta
2 na zajedničkom parkingu
Klimatizacija
Samostalno, hlađenje/grijanje
Informacije o cijeni
Cijena
€ 450.000
Cijena po m²
3.309 €/m²
Energetska učinkovitost
  • Godina izgradnje

    2025
  • Klima uređaj

    Samostalno, hlađenje/grijanje
  • Energetski certifikat

    Neklasificirano
Tlocrt
Otkrijte svaki kutak nekretnine
+9
Dodatne mogućnosti

Obratite se oglašivaču

Ili