Dvosobni stan Kaštel Lukšić, Kaštela, Kaštela

€ 230.200
2
67 m²
1
1
Ne

Bilješka

Oglas ažuriran 22. 04. 2026.
Opis

referenca: 919

NOVOGRADNJA! Dvosobni stan, Kaštel Lukšić, 67m2

Dvosobni stan s natkrivenom terasom – 57,06 m² + terasa 10,30 m² | Kaštel Lukšić

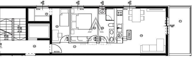
Na prodaju je funkcionalan dvosobni stan s ukupnom stambenom površinom od 57,06 m², kojem pripada i natkrivena terasa od 10,30 m², idealna za uživanje na otvorenom u bilo kojem vremenu.

Stan se sastoji od hodnika, dnevnog boravka s kuhinjom i blagovaonicom, dvije spavaće sobe, kupaonice i garderobe. Raspored prostorija je pažljivo osmišljen kako bi osigurao maksimalnu udobnost i funkcionalnost za svakodnevni život.

Natkrivena terasa dodatno doprinosi komforu stanovanja, pružajući prostor za opuštanje, doručak na otvorenom ili večernja druženja.

Stan je svijetao i ugodan, smješten u modernoj stambenoj zgradi s liftom, na izvrsnoj lokaciji u Kaštel Lukšiću, u blizini svih sadržaja – škole, vrtića, trgovina, pekare i ostalih važnih sadržaja.

Stanu pripada jedno vanjsko parkirno mjesto, a postoji i mogućnost nadoplate za garažno parking mjesto.

Idealna prilika za samce, parove ili obitelj koji traže funkcionalan stan s terasom u atraktivnoj lokaciji.

ID CODE: 919

ALL SERVICE d.o.o.
Mob: 0952016994
Tel: 014002709
E-mail: info@allservice.hr
www.allservice.hr
Značajke
Vrsta
Stan
Ugovor
Prodaja
Kat
1 kat
Katovi zgrade
3
Dizalo
Ne
Površina
67 m²
Prostorije
2
Spavaće sobe
2
Kupaonice
1
Balkon
Ne
Terasa
Ne
Garažno mjesto, parkirna mjesta
1 na zajedničkom parkingu
Informacije o cijeni
Cijena
€ 230.200
Cijena po m²
3.436 €/m²
Energetska učinkovitost
  • Godina izgradnje

    2026
  • Energetski certifikat

    Neklasificirano
Tlocrt
Otkrijte svaki kutak nekretnine
+4
Dodatne mogućnosti

Obratite se oglašivaču

Ili