Trosobni stan Kaštel Lukšić, Kaštela, Kaštela

€ 300.000
3
94 m²
1
2
Ne
Terasa

Bilješka

Oglas ažuriran 22. 04. 2026.
Opis

referenca: 920

NOVOGRADNJA! TROSOBNI STAN, KAŠTEL LUKŠIĆ, 94M2

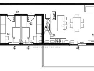
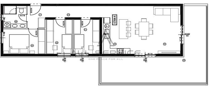
Trosobni stan s natkrivenom terasom – 76,36 m² + terasa 35,64 m² | Kaštel Lukšić, netto površine 94m2

Na prodaju je prostran i funkcionalan trosobni stan s ukupnom unutarnjom površinom od 76,36 m², kojem pripada i velika natkrivena terasa površine 35,64 m², idealna za boravak na otvorenom tijekom cijele godine.

Stan se sastoji od hodnika, dnevnog boravka s kuhinjom i blagovaonicom, tri spavaće sobe i kupaonice. Raspored prostorija je pažljivo osmišljen kako bi osigurao udobnost i praktičnost za obiteljski život.

Prostrana natkrivena terasa predstavlja jednu od glavnih prednosti ove nekretnine te pruža savršen prostor za opuštanje, druženja i objedovanje na otvorenom, uz dodatnu privatnost i komfor.

Stan je svijetao i ugodan, smješten u modernoj stambenoj zgradi s liftom, na izvrsnoj lokaciji u Kaštel Lukšiću, u blizini svih sadržaja potrebnih za svakodnevni život – škole, vrtića, trgovina, pekare i ostalih važnih sadržaja.

Stanu pripada jedno vanjsko parkirno mjesto, a postoji i mogućnost nadoplate za garažno parking mjesto.

Odličan izbor za obiteljsko stanovanje ili kao kvalitetna investicija na atraktivnoj lokaciji.

ID CODE: 920

ALL SERVICE d.o.o.
Mob: 0952016994
Tel: 014002709
E-mail: info@allservice.hr
www.allservice.hr
Značajke
Vrsta
Stan
Ugovor
Prodaja
Kat
2 kat
Katovi zgrade
3
Dizalo
Ne
Površina
94 m²
Prostorije
3
Spavaće sobe
3
Kupaonice
1
Balkon
Ne
Terasa
Da
Garažno mjesto, parkirna mjesta
1 na zajedničkom parkingu
Informacije o cijeni
Cijena
€ 300.000
Cijena po m²
3.191 €/m²
Energetska učinkovitost
  • Godina izgradnje

    2026
  • Energetski certifikat

    Neklasificirano
Tlocrt
Otkrijte svaki kutak nekretnine
+4
Dodatne mogućnosti

Obratite se oglašivaču

Ili