map icon

Skladište za Prodaja

ZagrebStaro Brestje
€ 2.500.000
1.810 m²

Bilješka

Oglas ažuriran 14. 04. 2026.
Opis

referenca: EK-2998807

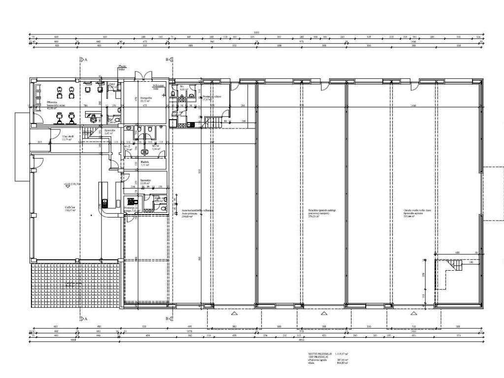
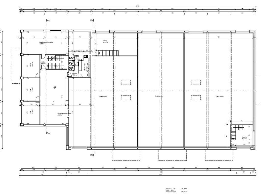
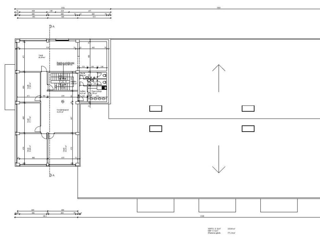
POSLOVNI OBJEKT - JELKOVEC Lokacija s potencijalom - izvrsna prilika za investiciju! Prodaje se poslovni objekt za rekonstrukciju u Jelkovcu s urednom dokumentacijom i važećom građevinskom dozvolom. Objekt je moguće prilagoditi različitim poslovnim djelatnostima. Površina zemljišta i objekta: Zemljište: cca 5.000 m² Hala: 874,58 m² (NKP) Uredi: • Prizemlje: 253,69 m² • 1. kat: 307,95 m² • 2. kat: 229,84 m² Namjena: Poslovna zgrada - rekonstrukcija Priključci: Voda, struja, plin, kanalizacija Dokumentacija: Građevinska dozvola, projekt za rekonstrukciju, lokacijska informacija Tlocrt: Prizemlje + 1. kat + 2. kat Pristup: Asfaltirana cesta Izvrsna lokacija: Uhodana poslovna zona s odličnom prometnom povezanošću - blizina Zagrebačke obilaznice, centra Sesveta i grada Zagreba. Mogućnosti korištenja: Uredi, trgovina, izložbeni prostor, skladište, uslužne djelatnosti i drugo. Idealno za: Investitore, poduzetnike i tvrtke u potrazi za kvalitetnim poslovnim prostorom. Za više informacija i razgledavanje slobodno nas kontaktirajte.
Značajke
Ugovor
Prodaja
Vrsta
Skladište
Površina
1.810 m²
Informacije o cijeni
Cijena
€ 2.500.000
Cijena po m²
1.381 €/m²
Otkrijte svaki kutak nekretnine
+11
Dodatne mogućnosti

Obratite se oglašivaču

Ili