map icon

Ured za Najam

ZagrebZrinjevac - Cvjetni trg
€ 20/mjesec
341 m²

Bilješka

Oglas ažuriran 14. 04. 2026.
Opis

referenca: EK-2998827

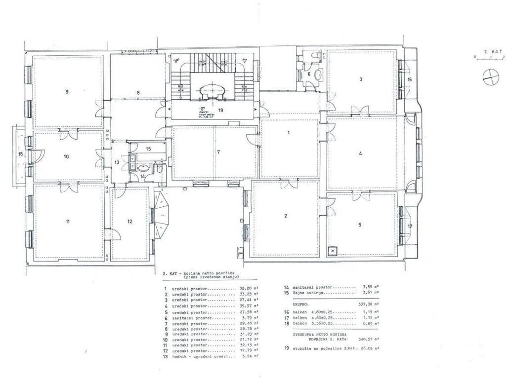
Ekskluzivan uredski prostor za zakup u samom centru grada Opis zgrade: Zgrada je temeljito rekonstruirana s očuvanjem duha originalnog prostora, uz obnovljene stilske detalje: - Originalni vitraji, štukature, kaljeve peći te detalji bravarije i stolarije. - Moderna završna obrada i suvremena oprema osiguravaju ugodno i funkcionalno radno okruženje. Dostupni prostori za zakup: - 2. kat - 341 m² (useljivo odmah) - 3. kat - 320 m² (useljivo odmah) - Potkrovlje - 110 m² (useljivo odmah) 14 eur/m2 Ovaj ekskluzivni uredski prostor idealan je za tvrtke koje traže reprezentativno sjedište u samom srcu Zagreba. Tražena cijena zakupa: 20 eur/m2 + PDV + režije Za dodatne informacije ili dogovor razgleda, kontaktirajte nas već danas! Uvjeti suradnje naše tvrtke svode se na jednokratnu naknadu u visini jedne mjesečne zakupnine uvećano za PDV slučaju sklapanja ugovora o zakupu.
Značajke
Ugovor
Najam
Vrsta
Ured
Površina
341 m²
Informacije o cijeni
Cijena
€ 20/mjesec
Cijena po m²
0 €/m²
Pojedinosti o troškovima
Polog
Nije navedeno
Energetska učinkovitost
  • Grijanje

    Samostalno
Otkrijte svaki kutak nekretnine
+12
Dodatne mogućnosti

Obratite se oglašivaču

Ili