map icon

Ured za Najam

ZagrebŠpansko - Stenjevec
€ 12/mjesec
200 m²

Bilješka

Oglas ažuriran 14. 04. 2026.
Opis

referenca: EK-2998857

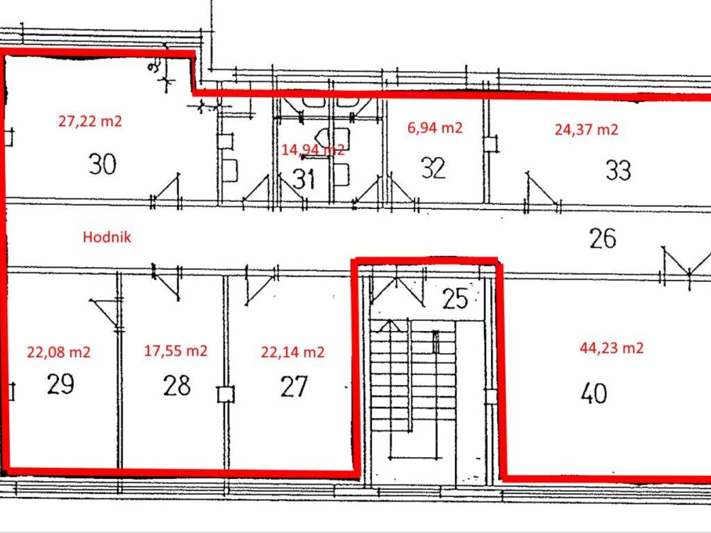
Najam poslovnog prostora - Kovinska, Jankomir Iznajmljuje se moderan uredski prostor na 1. katu poslovne zgrade, ukupne površine cca 200 m². Prostor se sastoji od 7 odvojenih radnih soba različitih veličina, modernih toaleta te sustava grijanja i klimatizacije za ugodan rad tijekom cijele godine. Ured je opremljen IT mrežom (Cat 6). Namještaj prema dogovoru. Osigurana su 2 parkirna mjesta. Cijena: 12 € / m² + PDV + režije Minimalni zakup: 3-5 godina Idealan prostor za tvrtke koje traže funkcionalan i potpuno opremljen ured na atraktivnoj lokaciji. Provizija: Zakupnik je obvezan platiti agencijsku proviziju u visini jedne mjesečne zakupnine, uvećano za PDV, po potpisu ugovora o zakupu.
Značajke
Ugovor
Najam
Vrsta
Ured
Površina
200 m²
Informacije o cijeni
Cijena
€ 12/mjesec
Cijena po m²
0 €/m²
Pojedinosti o troškovima
Polog
Nije navedeno
Energetska učinkovitost
  • Godina izgradnje

    1998
  • Grijanje

    Samostalno
  • Klima uređaj

    Samostalno
Otkrijte svaki kutak nekretnine
+14
Dodatne mogućnosti

Obratite se oglašivaču

Ili