map icon

Skladište za Najam

ZagrebGornji Stenjevec
€ 10/mjesec
2.200 m²

Bilješka

Oglas ažuriran 14. 04. 2026.
Opis

referenca: EK-2998895

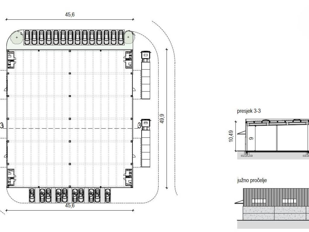
Najam skaldišta - Jankomir Skladište tlocrtne veličine cca 2200 m2, visine 9 m do grede. Ulaz/izlaz rolo vrata. Parking u garaži i oko objekta. Useljenje ljeto 2026 Cijena zakupa: 10 eur / m2 + PDV + režije. Zajednički troškovi uključeni u cijenu zakupa. Parking: - na površini oko objekta 40,00 EUR + PDV - u garaži objekta 60,00 EUR + PDV Uvjeti suradnje naše tvrtke svode se na jednokratnu naknadu u visini jedne mjesečne neto zakupnine uvećano za PDV u slučaju sklapanja ugovora o zakupu.
Značajke
Ugovor
Najam
Vrsta
Skladište
Površina
2.200 m²
Informacije o cijeni
Cijena
€ 10/mjesec
Cijena po m²
0 €/m²
Pojedinosti o troškovima
Polog
Nije navedeno
Dodatne mogućnosti

Obratite se oglašivaču

Ili