Trosobni stan Jezera, Tisno, Tisno

€ 207.620
3
59 m²
1
1
Ne
Terasa

Bilješka

Oglas ažuriran 28. 04. 2026.
Opis

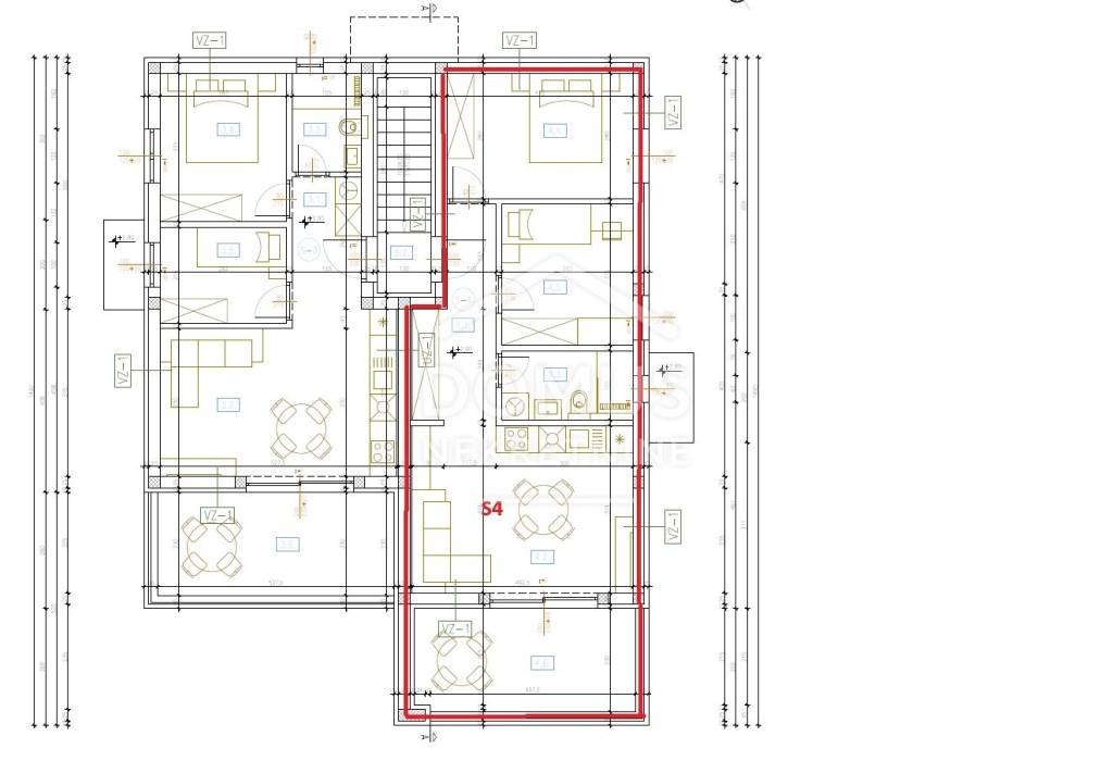
referenca: 7340-Z1-S4

Jezera, novogradnja, dvosobni apartman od 59,32 m²

Jezera, mirna lokacija, novogradnja – u manjoj stambenoj zgradi s ukupno 4 stambene jedinice, na 2 etaže: prizemlje + 1. kat.
Zgrada je modernog izgleda, s podnim grijanjem u kupaonicama i dnevnom boravku, klimatizirana u svim prostorijama, s električnim podizačima roleta i visokokvalitetnom keramikom.
Stambena jedinica S4 je dvosobni apartman koji se nalazi na prvom katu i ima 59,32 m² korisne površine. Apartman se sastoji od hodnika, kupaonice, dvije spavaće sobe, dnevnog boravka s kuhinjom te izlazom na prostranu terasu od 11,28 m².
Apartmanu pripada jedno parkirno mjesto. Zgrada se nalazi samo 500 m od mora, kao i od centra i svih važnijih sadržaja.
Predviđeni rok useljenja je proljeće 2027. godine.

ID CODE: 7340-Z1-S4

Katarina Marasović
Mob: 00 385 98 392 954
Tel: +385 22 444 620
E-mail: catherine@domus-nekretnine.hr
http://domus-nekretnine.hr

Diana Knežević
Mob: 00 385 95 289 4518
Tel: +385 22 444 620
E-mail: knezevic@domus-nekretnine.hr
http://domus-nekretnine.hr

Martina Silov
Mob: 00385 95 587 8860
Tel: +385 22 444 620
E-mail: martina@domus-nekretnine.hr
http://domus-nekretnine.hr
Značajke
Vrsta
Stan
Ugovor
Prodaja
Kat
1 kat
Dizalo
Ne
Površina
59 m²
Prostorije
3
Spavaće sobe
2
Kupaonice
1
Balkon
Ne
Terasa
Da
Garažno mjesto, parkirna mjesta
1 na zajedničkom parkingu
Grijanje
Samostalno, zrak
Ostale karakteristike
  • Protuprovalna vrata
Informacije o cijeni
Cijena
€ 207.620
Cijena po m²
3.519 €/m²
Energetska učinkovitost
  • Grijanje

    Samostalno, zrak
  • Energetski certifikat

    Neklasificirano
Tlocrt
Otkrijte svaki kutak nekretnine
+8
Dodatne mogućnosti

Obratite se oglašivaču

Ili