Obiteljska kuća Kupinovac, 81 81, Bjelovar

€ 205.000
5+
330 m²
3+

Bilješka

Oglas ažuriran 22. 10. 2025.
Opis

referenca: 1568

Bjelovar, Kupinovac, kuća u izgradnji

Stambena zgrada sa prizemljem i potkrovljem na kraju Kupinovca u neposrednoj blizini glavne prometnice, udaljena od Bjelovara cca 7 km, izgrađena na parceli površine 2610 m2. Uz ovu parcelu nalazi se još cca 9400 m2 zemljišta koje je moguće kupiti zasebno po cijeni od 4,00 €/m2.
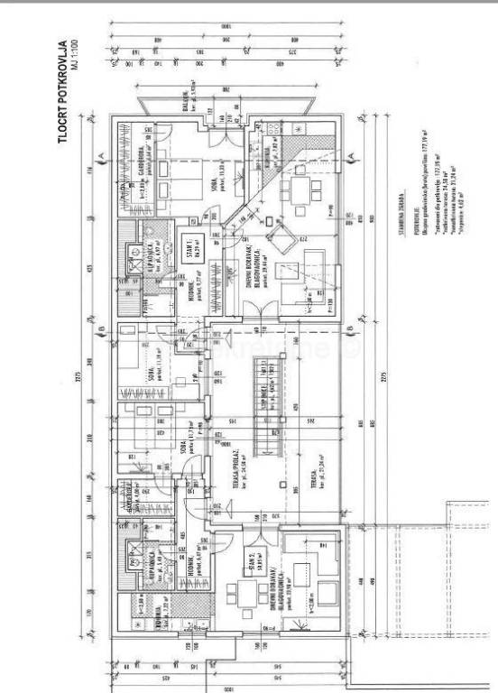
Objekat je predviđen za seoski turizam sa salom za bankete i dva veća stana na katu, a u prizemlju 3 sobe (svaka ima svoju kupaonicu) i još dva manja stana sa kupaonicom, vešeraj, hodnik, kotlovnica, ljetna kuhinja i terasa. Uz objekat je započeta izgradnja sale za bankete dim. 17,5 x 8,5 m.
Objekat ima sve komunalije - bunar, gradski vodovod, plin, septičku jamu. Odvojeni priključci za svaki stan, prizemlje zasebno. Ugrađena je PVC i ALU stolarija, rolete na elektromotor, talijanska i španjolska keramika, priprema tople vode 300 l.
Za detaljne informacije i ponudu drugih nekretnina posjetite našu stranicu www.mt-nekretnine.hr
Značajke
Vrsta
Obiteljska kuća
Ugovor
Prodaja
Površina
330 m²
Prostorije
5+
Kupaonice
3+
Grijanje
Centralno, radijatori, na plinski pogon
Ostale karakteristike
  • Vanjska stolarija od stakla / metala
Informacije o cijeni
Cijena
€ 205.000
Cijena po m²
621 €/m²
Pojedinosti o troškovima
Troškovi etažiranja
Bez naknada za etažno vlasništvo
Energetska učinkovitost
  • Stanje

    Dobro / Useljivo
  • Grijanje

    Centralno, radijatori, na plinski pogon
  • Energetski certifikat

    Neklasificirano
Tlocrt
Kuca u izgradnji, Prodaja, Bjelovar - Okolica, Kupinovac
Kuca u izgradnji, Prodaja, Bjelovar - Okolica, Kupinovac
Otkrijte svaki kutak nekretnine
+28
Dodatne mogućnosti

Obratite se oglašivaču

Ili