Dvosobni stan Vendita, Dobrinj

€ 179.000
2

Bilješka

Oglas ažuriran 05. 03. 2026.
Opis

referenca: EK-679015

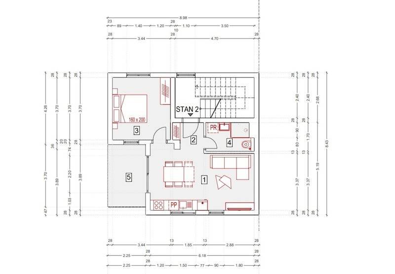
Moderni jednosobni stan na prvom katu, Panorama Krk, 5-2

Na otoku Krku uskoro započinje izgradnja novog stambenog naselja Krk Panorama s ukupno 18 stanova raspoređenih u 6 objekata. Svi stanovi projektirani su kako bi osigurali maksimalnu udobnost i luksuz, s naglaskom na vrhunsku kvalitetu materijala i završnu obradu. Blizina mora dodatno povećava atraktivnost, a prekrasne terase stvaraju ugođaj pravog mediteranskog odmora.

Početak izgradnje planiran je početkom 2026. godine, radovi će se intenzivno odvijati kroz 2026., a planirano useljenje predviđeno krajem 2027.

Više informacija: www.pgmg-nekretnine.hr

Na prodaju je moderan stan na prvom katu nove urbane vile! Stan se sastoji od prostranog dnevnog boravka s kuhinjom i blagovaonicom, spavaće sobe, kupaonice te terase. U cijenu je uključeno jedno parkirno mjesto u dvorištu zgrade. Svaki stan opremljen je električnim podnim grijanjem u kupaonici, a u dnevnom boravku i glavnoj spavaćoj sobi nalazit će se inverterske klima jedinice. Stan je vrlo sunčan i funkcionalno osmišljen za ugodan boravak.

Stan uključuje:


Talijanske pločice

PVC profile sa zvučnom i toplinskom izolacijom

Elegantnu balkonsku ogradu od kaljenog stakla

Električno podno grijanje u kupaonici

Invertersku klimu

Protuprovalna ulazna vrata

Pojačanu zvučnu izolaciju između zgrada i katova

Mogućnost priključka električne punionice na privatnom parkirnom mjestu

Glavne prednosti objekta:


Kvalitetna gradnja i oprema

Puno zelenih površina

400 m do gradske plaže

500 m do centra grada

Ograđeno parkiralište

Ekskluzivnu prodaju stanova u projektu Panorama Krk vodi naša partnerska agencija Premium nekretnine iz Pule (www.premiumnekretnine.hr).

Uvjet prodavatelja je da kupac preuzme dio troškova prodaje u iznosu od 3 % ugovorene vrijednosti + PDV.

Ako ste zainteresirani za kupnju, nazovite ili pošaljite poruku na:

Matea Blažević, mobilni broj +385 99 529 85 41 (Whatsapp i Viber) ili e-mail matea@premiumnekretnine.hr
Značajke
Vrsta
Stan
Ugovor
Prodaja
Prostorije
2
Spavaće sobe
1
Informacije o cijeni
Cijena
€ 179.000
Energetska učinkovitost
  • Energetski certifikat

    Oslobođeno
Otkrijte svaki kutak nekretnine
+5
Dodatne mogućnosti

Obratite se oglašivaču

Ili