Trosobni stan Vendita, Dobrinj

€ 269.000
3

Bilješka

Oglas ažuriran 05. 03. 2026.
Opis

referenca: EK-679021

Na prodaju stan u projektu Panorama Krk, 6-2

Na otoku Krku uskoro počinje gradnja novog stambenog naselja Krk Panorama, koje će sadržavati ukupno 18 stanova raspoređenih u 6 objekata. Svi stanovi pažljivo su dizajnirani kako bi pružili maksimalnu udobnost i luksuz, s posebnim naglaskom na kvalitetu materijala i završnu obradu. Blizina mora dodatno povećava vrijednost projekta, dok prekrasne terase pridonose ukupnom dojmu idiličnog stanovanja. Početak izgradnje planiran je početkom 2026. godine, radovi će se intenzivno odvijati kroz 2026., a planirano useljenje predviđeno krajem 2027.  Više informacija: www.pgmg-nekretnine.hr

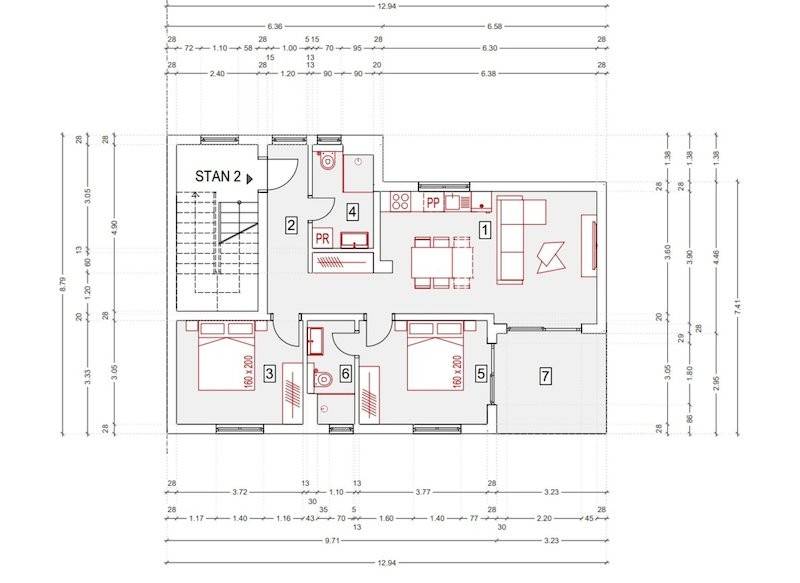
Na prodaju je moderan stan na prvom katu nove urbane vile! Stan se sastoji od prostranog dnevnog boravka s kuhinjom i blagovaonicom, dvije spavaće sobe, dvije kupaonice i terase. U cijenu je uključeno jedno parkirno mjesto u dvorištu zgrade. Svaki stan ima ugrađeno električno podno grijanje u kupaonici, a u dnevnom boravku i glavnoj spavaćoj sobi bit će postavljene inverterske klima jedinice. Stan je vrlo sunčan i projektiran za maksimalnu funkcionalnost i ugodno stanovanje.

Stan uključuje:


Talijanske pločice

PVC profile sa zvučnom i toplinskom izolacijom

Elegantnu balkonsku ogradu od kaljenog stakla

Električno podno grijanje u kupaonici

Invertersku klimu

Protuprovalna ulazna vrata

Pojačanu zvučnu izolaciju između zgrada i katova

Mogućnost priključka električne punionice na privatnom parkirnom mjestu

Glavne prednosti objekta:


Kvalitetna gradnja i oprema

Mnogo zelenih površina

400 m do gradske plaže

500 m do centra grada

Ograđeno parkiralište

Ekskluzivnu prodaju stanova u projektu Panorama Krk vodi naša partnerska agencija Premium nekretnine iz Pule (www.premiumnekretnine.hr).

Uvjet prodavatelja je da kupac preuzme dio troškova prodaje u iznosu od 3 % ugovorene cijene + PDV.

Trenutno je moguća neobvezujuća rezervacija.

Zahtjev za građevinsku dozvolu je već predan. Kupci koji naprave rezervaciju imat će prednost pri potpisu kupoprodajnog ugovora.

Ako ste zainteresirani za kupnju, nazovite ili pošaljite poruku na:

Matea Blažević, mobilni broj +385 99 529 85 41 (Whatsapp i Viber) ili e-mail matea@premiumnekretnine.hr
Značajke
Vrsta
Stan
Ugovor
Prodaja
Prostorije
3
Spavaće sobe
2
Informacije o cijeni
Cijena
€ 269.000
Energetska učinkovitost
  • Energetski certifikat

    Oslobođeno
Otkrijte svaki kutak nekretnine
+5
Dodatne mogućnosti

Obratite se oglašivaču

Ili