map icon

Obiteljska kuća 271 m², novo, Dugi Rat

Dugi Rat
€ 695.000
4
271 m²
3
Terasa

Bilješka

Oglas ažuriran 05. 02. 2026.
Opis

referenca: 2906-1

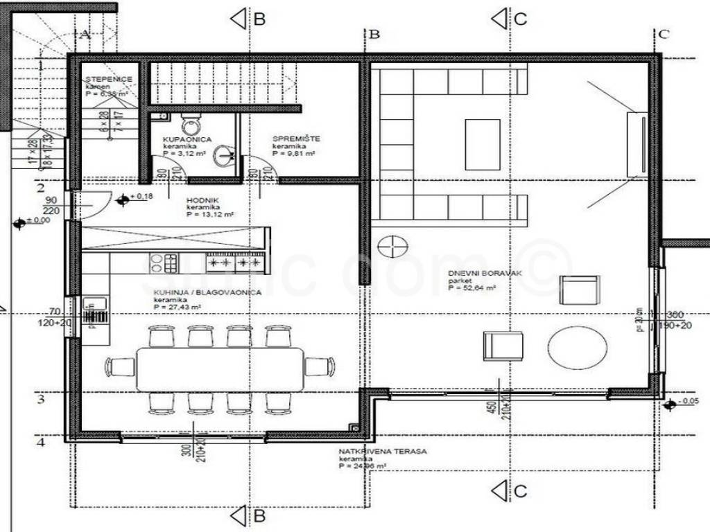
Posredujemo u prodaji prekrasne vile s bazenom, koja se gradi u Dućama kod Omiša. Vila se prodaje u rohbau izvedbi, koja je dovršena. Vila ima prekrasan pogled na more i otok Brač, smještena je na parceli od 540 m2, a sastoji se od prizemlja i kata, ukupne bruto površine 271 m2. U prizemlju se nalaze kuhinja, blagovaonica i prostrani dnevni boravak projektirani open-space konceptom, koji pružaju izlaz na prostranu terasu s infinity bazenom. Uz to, u prizemlju su i gostinjski WC koji se može prenamijeniti u kupaonicu te spremište. Na katu se nalaze 4 spavaće sobe, od kojih 3 imaju izlaz na terasu s pogledom na more i otok Brač, 2 kupaonice te prostorija za domaćinstvo predviđena kao praonica rublja. Sa sjeverne strane kuće nalazi se terasa koja pruža hladovinu i potpunu privatnost tijekom ljeta, idealna za roštilj i druženje. Na parceli se nalaze 3 parkirna mjesta. Udaljenost od mora je 150 m. Postoji mogućnost realizacije natkrivene terase, otvorene kuhinje, bara, jacuzzija i ostalih sadržaja na krovu kuće uz nadopunu projektne dokumentacije.

Standardna poslovna politika naše agencije za nekretnine je organiziranje razgledavanja nekretnine nakon što je klijent potpisao naš standardni agencijski ugovor. Potpisivanje ovog ugovora osnovni je uvjet na koji se nastavljaju daljnje aktivnosti povezane s kupnjom nekretnine, a to sve je utemeljeno na Zakonu o posredovanju u prometu nekretnina i Zakonu o zaštiti podataka.
Značajke
Vrsta
Obiteljska kuća
Ugovor
Prodaja
Kat
1
Površina
271 m² | poslovni prostor 811 m²
Prostorije
4
Kupaonice
3
Terasa
Da
Ostale karakteristike
  • Bazen
Detalji površine

Stambeni prostor

Kat
1
Površina
271,0 m²
Koeficijent
100%
Vrsta površine
Glavni
Komercijalna površina
271,0 m²

Zemljište

Kat
Prizemlje
Površina
540,0 m²
Koeficijent
100%
Vrsta površine
Dodatno
Komercijalna površina
540,0 m²
Informacije o cijeni
Cijena
€ 695.000
Cijena po m²
857 €/m²
Energetska učinkovitost
  • Stanje

    Novo / U izgradnji
  • Energetski certifikat

    Neklasificirano
Otkrijte svaki kutak nekretnine
+8
Dodatne mogućnosti

Obratite se oglašivaču

Ili