Građevinsko zemljište za Prodaja

€ 420.000
965 m²

Bilješka

Oglas ažuriran 04. 02. 2026.
Opis

referenca: Z11134

KRK VRBNIK-Građevinsko zemljište sa dozvolom

Građevinsko zemljište s dozvolama za izgradnju luksuznih jedinica

Na tržištu se rijetko pojavljuje ovako atraktivna prilika! Prodajemo građevinsko zemljište površine 965 m, koje dolazi s ishodovanim svim potrebnim dozvolama za gradnju, što vam omogućuje trenutni početak ovog uzbudljivog projekta.

Projekt:
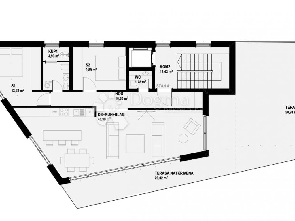
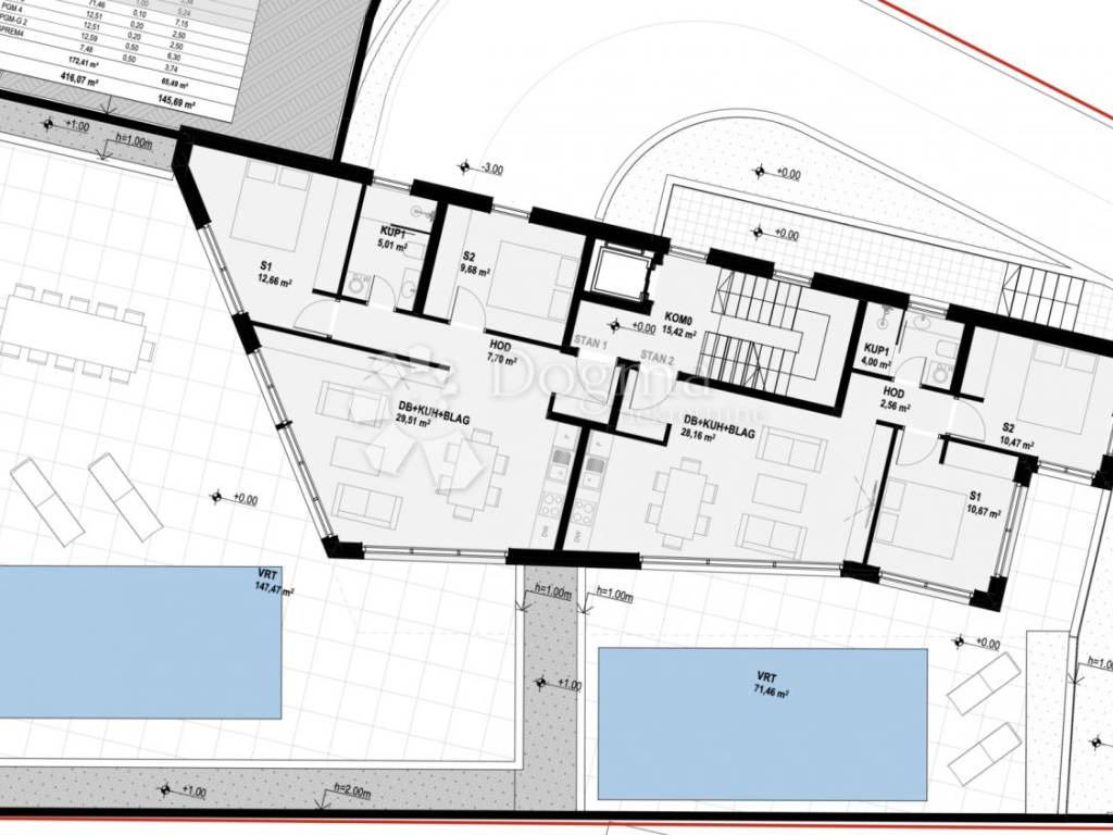
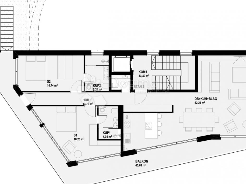
Planirani projekt sastoji se od četiri luksuzne jedinice, svaka s privatnim bazenom i prekrasnim pogledom na more. Ova nekretnina se nalazi u novoizgrađenom dijelu Vrbnika, što dodatno povećava vrijednost i privlačnost ovoga projekta prilikom završetka, kao i tijekom tržišnih oscilacija.

Detalji stanova:
Svaka jedinica koncipirana je sa 2 spavaće sobe, prostranim dnevnim boravkom, kuhinjom i blagovaonicom u otvorenom konceptu, što omogućava maksimalnu iskorištenost prostora i svjetlosti. Iz dnevnog boravka izlazi se na vlastite terase, idealne za uživanje u jutarnjoj kavi ili večernjim zalascima sunca.

Parking:
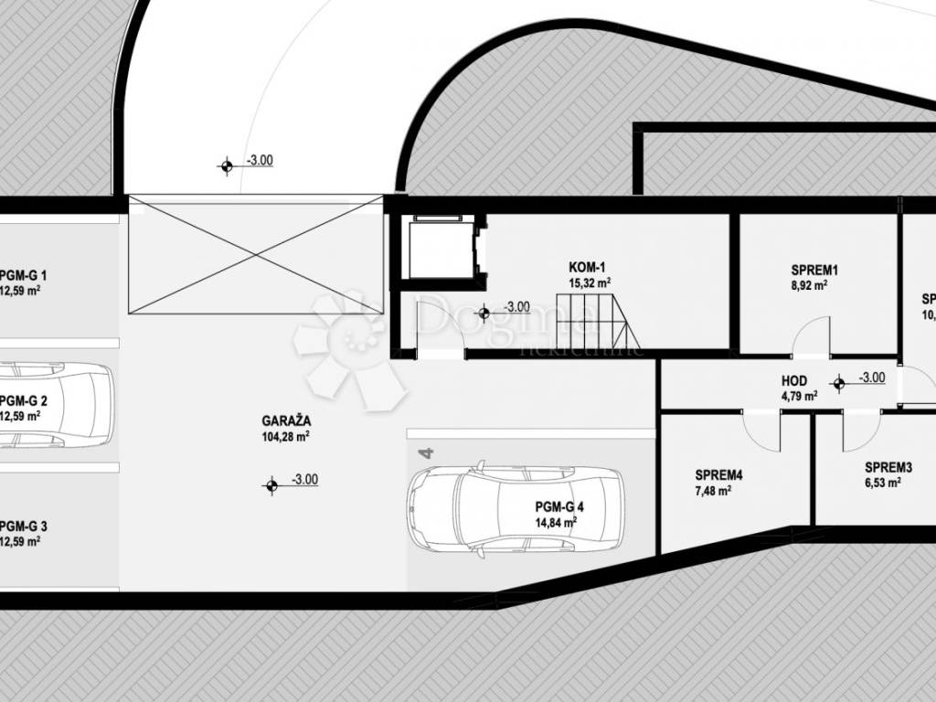
Svaka jedinica također dolazi s osiguranim garažnim parkirnim mjestom, čime se dodatno olakšava svakodnevni život.

Lokacija:
Zemljište se nalazi u idiličnom okruženju Vrbnika, poznatom po svom slikovitom pejzažu i blizini svih potrebnih sadržaja, uključujući restorane, trgovine i plaže. Ovaj dio otoka Krka privlači mnoge posjetitelje, što značajno povećava potencijal za najam i investiciju.

Ne propustite ovu izuzetan i rijetku priliku za kupnju građevinskog zemljišta na kojem možete realizirati svoj projekt snova! Kontaktirajte nas već danas za više informacija i dogovor o razgledavanju!

ZA SVA PITANJA I OGLED NEKRETNINE OBRATITE SE:

ROBERTO-BRUNO REŠETAR
GSM: +385998486365
Mail: bruno.resetar@dogma-nekretnine.com

ID KOD AGENCIJE: Z11134

Roberto-Bruno Rešetar
Asistent u posredovanju
Mob: 099/848-6365
Tel: 051 348 508
E-mail: bruno.resetar@dogma-nekretnine.com
www.dogma-nekretnine.com
Ako želite znati više, možete razgovarati s Roberto-Bruno Rešetar.
Značajke
Ugovor
Prodaja
Vrsta
Građevinsko zemljište
Površina
965 m²
Informacije o cijeni
Cijena
€ 420.000
Cijena po m²
435 €/m²
Otkrijte svaki kutak nekretnine
+7
Dodatne mogućnosti

Obratite se oglašivaču

Ili