Trosobni stan novo, prvi kat, Ližnjan

€ 1
3
64 m²
1
1
Terasa

Bilješka

Oglas ažuriran 06. 04. 2026.
Opis

referenca: 66935

Stan na 1. katu novogradnje - 500m od mora - pogled na more

Spektakularan novi projekt u Ližnjanu ! Luksuzni stanovi u urbanim vilama na izvanrednoj lokaciji !

Ližnjan je mjesto u jugoistočnoj Istri, 11km istočno od Pule te se nalazi na uzvisini ponad mora ( 45 m/nv ) iznad poznate uvale Kuje. Nekada je mjesto bilo poznato kao ribarska sredina s obzirom na lučicu iz koje su isplovljavale ribarice, međutim danas ponosno nosi svoj identitet kao ribarsko mjesto ali i kao jaka turistička destinacija. Zadnjih godina je općina Ližnjan kao i samo mjesto jako unaprijedila svoje turističke sadržaje a samim time i pridobila jako puno gostiju koji traže nešto poput ovog predivnog mjesta za opuštanje i odmaranje tijekom ljetnih mjeseci.

Na jednoj od boljih lokacija u Ližnjanu ( svega 500m od mora ) u prodaji imamo jedan od naj ekskluzivnijih projekata stanogradnje koje se našao na ovim prostorima.
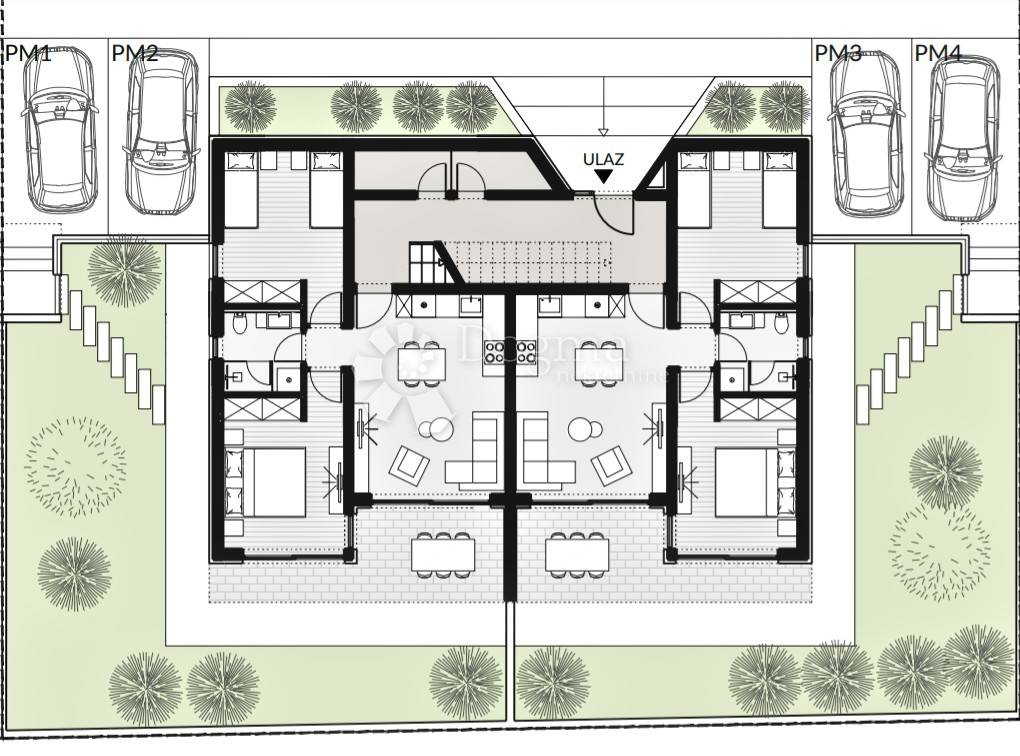
Radi se o projektu modernog i luksuznog dizajna, sačinjenog od četiri stambena objekta s po četiri stambene jedinice ( po dvije u prizemlju i dvije na katu ).
Gradnja i realizacija projekta u rukama je jednog od najvećih i najkvalitetnijih investitora na ovim prostorima dok sami projekt, s arhitekturnog i dizajnerskog aspekta, potpisuje kao i puno puta do sada, jedan od najboljih projektantskih studia na ovom djelu poluotoka.

Stanovi će biti svrstani u dvije različite kategorije, te ćemo tako imati stanove u prizemlju s vlastitim dvorištem dok će na katu biti smješteni stanovi s velikim terasama i prekrasnim, otvorenim pogledom na more.
Svi će stanovi biti sličnih kvadratura, odnosno, iste tipologije ( 2s+DB ).
Rasporedom su osmišljeni kao komforni obiteljski stanovi s po dvije spavaće sobe, kupaonicom te velikom kuhinjom s blagovaonicom i dnevnim boravkom ( open space sistem ) s izlazom na terasu.
U samoj gradnji koristit će se naj kvalitetniji materijali na tržištu te suvremene tehnologije.
Oprema stanova bit će iznad prosječne kvalitete, što bi značilo da će u stanove biti ugrađena visokokvalitetna stolarija na svim otvorima s električnim roletama i komarnicima, podove će krasiti prvoklasna keramika, sanitarije od renomiranih proizvođača te klima uređaji u svakoj od prostorija samo su neke od zavidnih karakteristika koje će krasiti ovaj projekt.
Uz svaki stan predviđeno i osigurano je jedno parkirno mjesto te jedno spremište unutar zgrade.

S obzirom na lokaciju i opremljenost, kao i na konačnu, krajnju izvedbu stanovi su to koji će zadovoljiti i najzahtjevnije kupce.
Idealna nekretnina za život a isto tako i savršena investicija u turizam i turističke svrhe.

Planirani početak gradnje je na jesen 2022. godine dok je kraj radova i useljenje u stanove predviđeno za ljeto 2023. godine.

Budući kupci, uživaju maksimalnu sigurnost kupovinom nekretnine u ovom projektu radi mogućnosti plaćanja u više faza tijekom izgradnje !

Radi ograničenog broj stanova ne propustite priliku te osigurajte Vaš termin za prezentaciju i dodatne informacije.

ID KOD AGENCIJE: 66935

Dogma Pula
Tel: +385 52 770 811
E-mail: pula2@dogma-istra.com
www.dogma-istra.com
Značajke
Vrsta
Stan
Ugovor
Prodaja
Kat
1 kat
Površina
64 m²
Prostorije
3
Spavaće sobe
2
Kupaonice
1
Balkon
Ne
Terasa
Da
Informacije o cijeni
Cijena
€ 1
Cijena po m²
0 €/m²
Energetska učinkovitost

Potrošnja energije

A+

Otkrijte svaki kutak nekretnine
+17
Dodatne mogućnosti

Obratite se oglašivaču

Ili