223 rezultata
kuće na prodaju u području Mašićeva - Dobri dol u Zagreb
- 1/25top



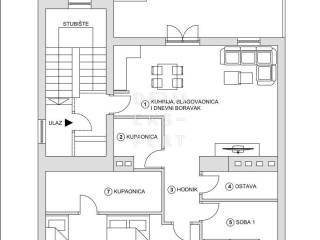
€ 420.000Trosobni stan prvi kat, Mašićeva - Dobri dol, ZagrebOdlična investicija u Petrovoj ulici! Prodaje se potpuno namješten trosoban stan u Maksimiru, koji se nalazi na prvom katu manje stambene zgrade bez lifta, a orijentiran je na sjever i jug. Površina stana iznosi 87.82 m2. Stan se sastoji od: - dnevnog boravka s kuhinjom i blagovaonicom - hodnika - gospodarske prostorije - kupaonice - dvije spavaće sobe - dodatne en-suite kupaonice - prostrane terase Stanu pripada etaža u visokom potkrovlju (roh-bau), bruto površine približno 105 m2, a za koju postoji projekt kako bi se napravila dodatna dva stana ili apartmana. Odlična lokacija stana u jedn
1/12novopremium
1/16advanced
1/15standard
1/13lite
1/9novolite
1/21lite
1/35lite
1/20lite
1/24lite
1/15lite
1/7novolite
1/18lite
1/21lite
1/25lite
1/10lite
1/14lite
1/13lite
1/17lite
1/14lite
1/12lite
1/12lite
1/20lite




































