Apartamento T3 Kraljevec, Tuškanac, Zagreb

€ 1.200.000
3
171 m²
r/c
Terraço

Nota

Anúncio atualizado em 03/03/2026
Descrição

referência: EUROVILLA-556448

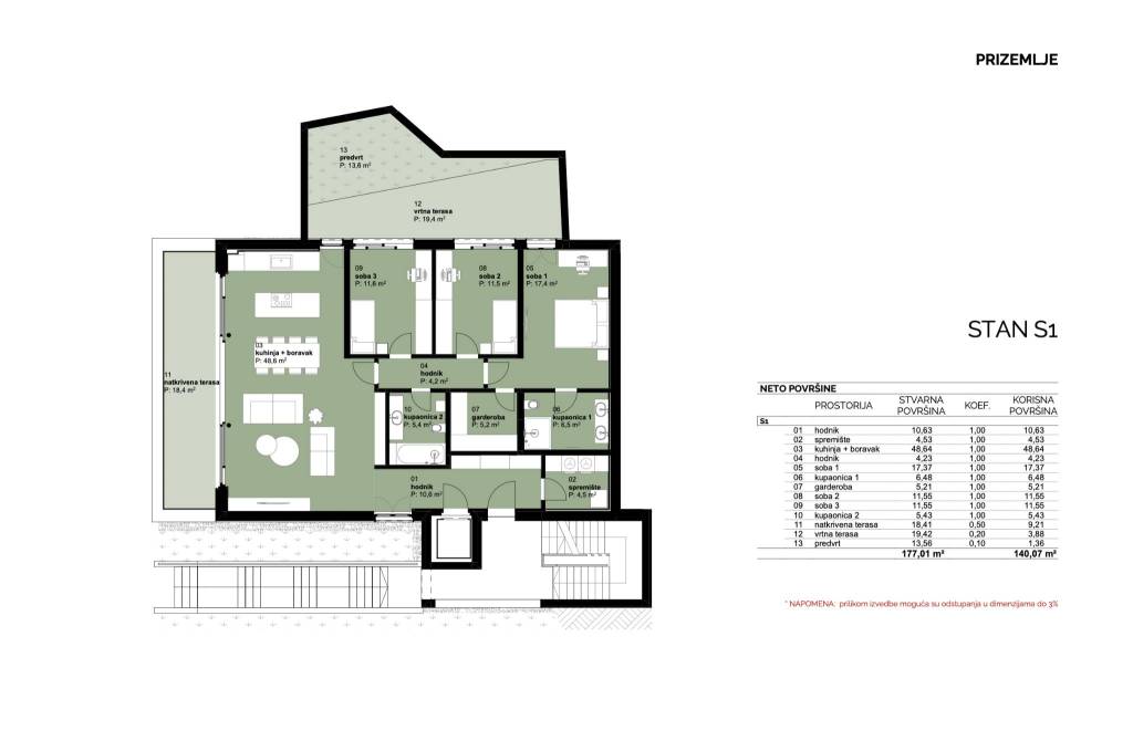
Tuškanac-Kraljevec, novogradnja, luksuzan četverosoban stan u prizemlju zatvorene površine 125,62 m2 s natkrivenom terasom 18,41 m2 (NKP 9,21 m2), vrtom 32,98 m2 (NKP 5,24 m2), garažnim mjestom 18,70 m2 (NKP 14,03 m2), natkriveno parkirno mjesto 20,44 m2 (NKP 10,22 m2) i spremištem 9,20 m2 (NKP 6,90 m2), ukupni NKP 171,21 m2.Sastoji se od ulaznog hodnika, spremišta, dnevnog boravka s blagovaonom i kuhinjom, predsoblja, dvije spavaće sobe, kupaonice, master sobe s kupaonicom i garderobom, te natkrivene terase. Jedan stan na etaži, trostrano orijentiran, dizalo direktno u stan, KNX sustav, WICONA vanjska stolarija.Stanu pripadaju garažno mjesto, natkriveno vanjsko parkirno mjesto i spremište.KONSTRUKTIVNI ELEMENTI ZGRADENosiva konstrukcija će se izvesti kompletno kao armiranobetonska. Zgrada se temelji na temeljnoj ploči debljine 50 cm. Vertikalnu nosivu konstrukciju čine armiranobetonski zidovi i stupovi debljine 20 i 25 cm. Međukatna konstrukcija se izvodi kao ravna monolitna armiranobetonska ploča debljine 18 i 20 cm, oslonjena na grede i zidove. Stubišni krakovi, podesti i međupodesti su armiranobetonski.KROVOVIKrov 1 . kata je ravni prohodni, toplinski izoliran XPS-om minimalne debljine 16 cm (dva sloja, 8+8 cm) na koju se polaže hidroizolacijska TPO membrana. Parna brana ispod XPS-a se izvodi od bitumenske membrane s uloškom aluminijske folije. Krov se završno oblaže keramičkim pločicama na podmetačima.Krov 2. kata je ravni neprohodni, toplinski izoliran mineralnom vune minimalne debljine 16 cm (dva sloja, 8+8 cm) na koju se polaže hidroizolacijska TPO membrana. Parna brana ispod mineralne vune se izvodi od bitumenske membrane s uloškom aluminijske folije. Krov se završno prekriva šljunkom.PROČELJENa vidljivim zidovima pročelja se izvodi ETICS sustav sa toplinskom izolacijom od ploča mineralne vune minimalne debljine 15 cm. Završno se izvodi dekorativna žbuka iz kolekcije StoSignature. Zidovi unutar tla i podnožje fasade se hidroizoliraju TPO membranom i toplinski izoliraju XPS-om.VANJSKA ALUMINIJSKA BRAVARIJAProzori i stijene izvode se od aluminijskih profila sa prekidom toplinskog mosta u sustavu proizvođača Schüco ili Wicona. Ostakljenje se vrši trostrukim izo staklom. Zaštita od sunca se izvodi vanjskim aluminijskim žaluzinama na elektromotor. Prozori i stijene su opremljene komarnicima za zaštitu od insekata. Na ulazima u stanove se ugrađuju puna protuprovalna aluminijska vrata u sustavu proizvođača Schüco ili Wicona. Opcionalno se u vanjsku bravariju može ugraditi sustav za decentraliziranu ventilaciju.UNUTARNJA BRAVARIJA I STOLARIJAIzmeđu parkirno garažnih mjesta i hodnika se ugrađuju čelična protupožarna vrata, a između hodnika i spremišta čelična vrata. Na ulazu u podrum se ugrađuju čelična protupožarna i protuprovalna vrata.U stanovima se ugrađuju puna drvena vrata sa skrivenim aluminijskim dovratnicima.Planirano useljenje 03/2026. godine.Ostale informacije na upit.... Više na eurovilla.hr, ID: 556448
Se quiser saber mais, pode falar com Andrej Vučković.
Características
Tipologia
Apartamento
Contrato
Venda
Andar
Rés-do-chão
Superfície
171 m²
Quartos
3
Quartos
3
Terraço
Sim
Detalhe da superfície

Habitação

Andar
Rés-do-chão
Superfície
171,0 m²
Coeficiente
100%
Tipo de superfície
Principal
Sup comercial
171,0 m²
Informações de preço
Preço
€ 1.200.000
Preço por m²
7.018 €/m²
Eficiência energética
  • Estado

    Novo / Em construção
  • Certificação energética

    Livre
Planta
Descubra cada canto da propriedade
+5
Opções adicionais

Contactar o anunciante

Ou
agent male

Andrej Vučković