Vivenda plurifamiliar Maksimir, Dotrščina, Zagreb

€ 900.000
5+
322 m²
Não
Varanda
Terraço

Nota

Anúncio atualizado em 13/04/2026
Descrição

This description has been translated automatically and may not be accurate

referência: 5164

Sale of a Spacious Family House in a Quiet, Family-Oriented Neighborhood

For sale is a spacious family house situated on a 308 m² plot, featuring three above-ground floors with a total net living area of 322 m². The property is ideal for large families or investors and offers numerous possibilities for space customization.

Ground floor – 120 m²
Currently used as a workshop with its own sanitary facilities, along with an additional 40 m² space with a separate entrance. This area provides great flexibility and can be adapted for business, storage, or other purposes.

First floor – 94.64 m²
An enclosed roh-bau space with significant potential for further development. At the rear of the house, there is a spacious 54 m² terrace, offering a perfect place for relaxation and outdoor enjoyment.

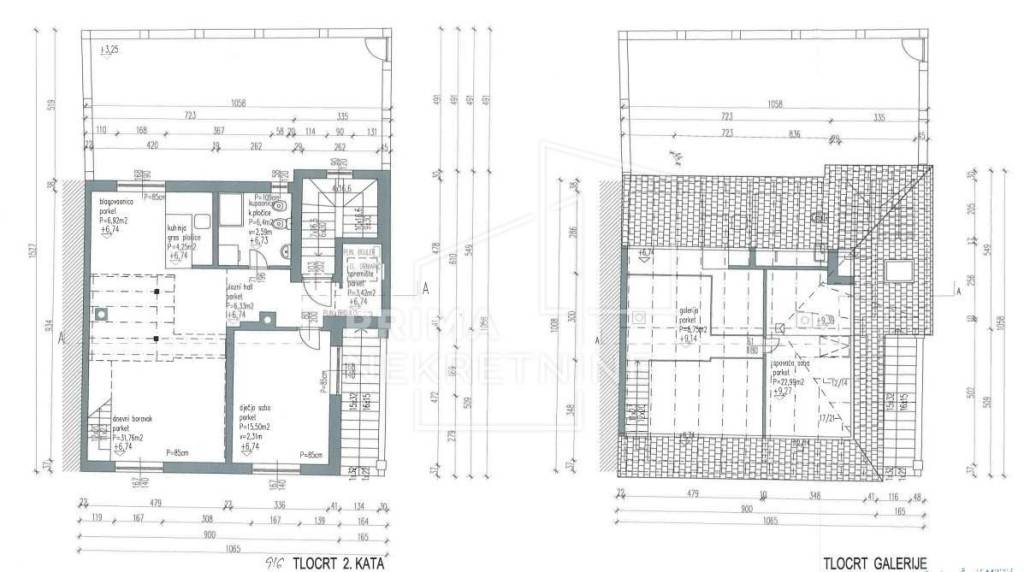
Second floor – 106.32 m²
A fully finished residential area comprising an entrance hallway, a children’s bedroom, a living room with kitchen and dining area, a storage room, and a gallery featuring a bedroom and a workspace.

Additional Information:

2012 renovation: New exterior joinery, new roof, and reinforced concrete inter-floor construction

Parking: Space for three vehicles in the courtyard and two additional parking spaces in front of the house

Ownership: Clear and tidy ownership documentation

Location: The house is located in an excellent micro-location, in close proximity to Kvatrić Market, public transportation (2-minute walk), and all essential amenities such as kindergartens, schools, and shops.

Ako želiš, mogu dodatno:

prilagoditi tekst američkom ili britanskom tržištu

skratiti verziju za property portals

napisati luxury / investment-focused varijantu

ID CODE: 5164
Características
Tipologia
Vivenda plurifamiliar
Contrato
Venda
Andares do Edifício
2
Elevador
Não
Superfície
322 m²
Quartos
5+
Quartos
0
Varanda
Sim
Terraço
Sim
Estacionamento, lugares de estacionamento
3 em estacionamento compartilhado
Aquecimento
Central, piso radiante
Ar condicionado
Ar condicionado, frio/quente
Informações de preço
Preço
€ 900.000
Preço por m²
2.795 €/m²
Eficiência energética
  • Ano de construção

    1935
  • Aquecimento

    Central, piso radiante
  • Ar condicionado

    Ar condicionado, frio/quente
  • Certificação energética

    Não classificável
Planta
Descubra cada canto da propriedade
+4
Opções adicionais

Contactar o anunciante

Ou