Terreno para construção para Venda

€ 155.000
278 m²

Nota

Anúncio atualizado em 31/03/2026
Descrição

referência: I34102

PRODAJA, ZEMLJIŠTE, ZAGREB, VRAPČE, 278 m2, građevinska dozvola

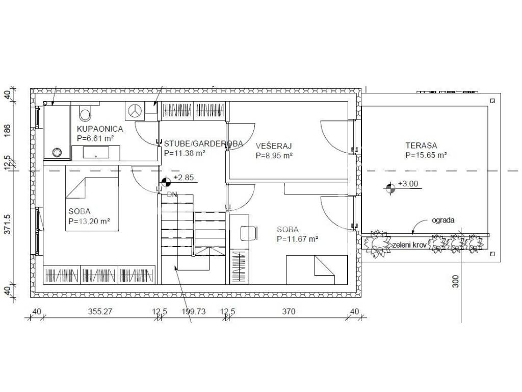
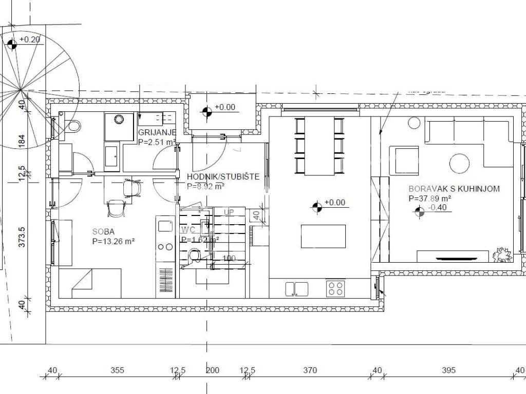
U ponudi imamo građevinsko zemljište na Vrapču, u ulici Potok. Parcela ima 278 m2 i pravomoćnu građevinsku dozvolu za izgradnju kuće P+1, ukupne bruto površine 155,46 m2, prema urbanističkim pravilima 2.2.

Prema projektu, u prizemlju su predviđeni hodnik, stubište, jedna spavaća soba s kupaonicom, dodatni wc, tehnička prostorija te dnevni boravak s kuhinjom i blagovaonicom s izlazom na vrt. Na katu se nalaze dvije spavaće sobe, kupaonica, hodnik s ugradbenim ormarima, vešeraj i terasa. Ako je potrebno, umjesto vešeraja može se dobiti i četvrta spavaća soba.

Prilaz parceli osiguran je javnim putem. Na parceli je moguće organizirati jedno parkirno mjesto prema projektu.

Lokacija je mirna i zelenilom okružena, idealna za kupce koji žele kuću umjesto stana, uz blizinu svih sadržaja. Dječji vrtić Vrapče, osnovne škole, dom zdravlja i tržnica Vrapče nalaze se u blizini.

Na zemljištu se nalazi manji objekt namjenjen rušenju.

Komunalije: gradski plin, voda, kanalizacija, asfaltirani prilaz i struja.

Više informacija na upit.

Características
Contrato
Venda
Tipologia
Terreno para construção
Superfície
278 m²
Informações de preço
Preço
€ 155.000
Preço por m²
558 €/m²
Descubra cada canto da propriedade
+6
Opções adicionais

Contactar o anunciante

Ou