Apartamento T3 novo, segundo andar, Delnice

€ 229.284
3
69 m²
1
2
Sim

Nota

Anúncio atualizado em 25/03/2026
Descrição

This description has been translated automatically and may not be accurate

referência: I33930

Apartment, NEW BUILDING, sale Gorski Kotar, Delnice, center, Lujzijana street, 3 rooms, 69.48 m2

In this high-quality project, modern architecture with an emphasized mountain character, 51 apartments will be located with planned occupancy in the autumn of 2027.

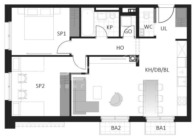
The spacious two-bedroom apartment consists of 2 bedrooms, a bathroom, a toilet, a hallway, a living room with a kitchen and dining area, and 2 balconies.

Technical description and equipment:
- Reinforced concrete structure
- ETICS facade thickness of 15 cm
- PVC joinery with electric roller shutter lifting
- Anti-burglary and fire-resistant entrance doors
- Three-layer parquet of top quality
- Class I ceramic tiles in sanitary rooms
- Bathroom equipment and sanitary ware, Walk-in shower
- Underfloor heating in all rooms with digital thermostats
- Heating and cooling via fan coil units in all main rooms
- Low-noise fans in sanitary rooms
- Video intercom

The KotarOne project is located in the very center of Delnice, on Lujzinskoj street, and is surrounded by all the necessary amenities for living within a few minutes' walk. It is just a few minutes' drive from the Rijeka Zagreb highway, and it takes 1 hour to drive to Rijeka or Zagreb.
Características
Tipologia
Apartamento
Contrato
Venda
Andar
2 andar
Elevador
Sim
Superfície
69 m²
Quartos
3
Quartos
2
Casas de banho
1
Mobilado
Não
Estacionamento, lugares de estacionamento
1 em estacionamento compartilhado
Aquecimento
Individualizado, fonte de alimentação elétrica
Ar condicionado
Frio/quente
Informações de preço
Preço
€ 229.284
Preço por m²
3.323 €/m²
Eficiência energética

Consumo de energia

B

Descubra cada canto da propriedade
+3
Opções adicionais

Contactar o anunciante

Ou