Apartamento T3 novo, quarto andar, Makarska

€ 274.680
3
66 m²
1
4
Sim

Nota

Anúncio atualizado em 30/04/2026
Descrição

This description has been translated automatically and may not be accurate

referência: I31430

Makarska Apartment: A Blend of Luxury, Style, and Comfort

Enjoy a panoramic view of the sea and Mount Biokovo directly from your apartment, because:

this unique project represents a new dimension of luxury and modern living on Makarskas real estate market. The architectural design, space layout, and build quality are all to the highest contemporary standards, with a special emphasis on environmental protection and creating a premium living environment. The project consists of 3 buildings with 2 communal swimming pools.

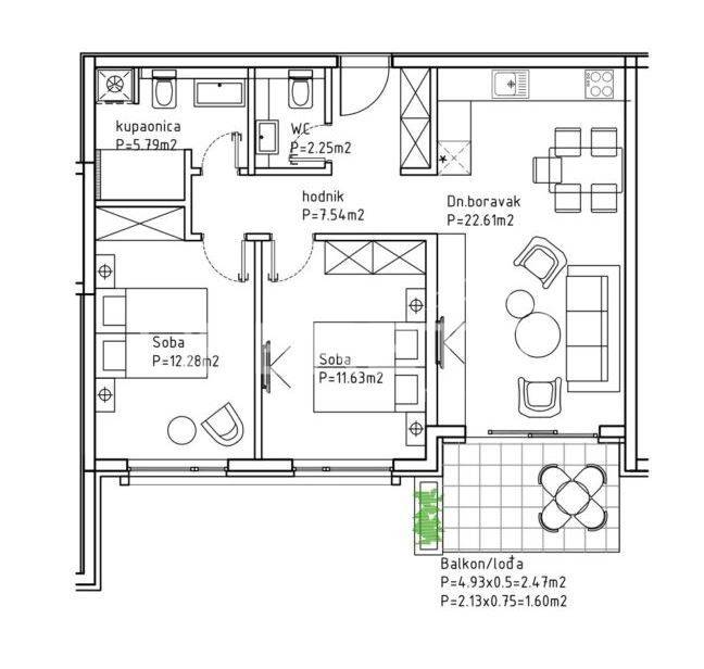
This apartment is located in building number 1, with a total area of 66.17 m and comprises: a bathroom (5.79 m), a toilet (2.25 m), a hallway (7.54 m), a living room with dining area (22.61 m), two bedrooms (12.28 m and 11.63 m), and a balcony/loggia (4.93 m and 2.13 m).

A garage parking space is included in the price.

Construction is scheduled for completion by the end of this year, making now the perfect time to secure your home or investment.

The distance to the sea is 900 m, and the center of Makarska is 1,000 m away.

The apartment is oriented southeast.

Beautifully landscaped grounds and communal pools create an ideal setting for relaxation, while this location offers stunning panoramic views of the sea and Mount Biokovo.

.
Características
Tipologia
Apartamento
Contrato
Venda
Andar
4 andar
Elevador
Sim
Superfície
66 m²
Quartos
3
Quartos
2
Casas de banho
1
Mobilado
Não
Estacionamento, lugares de estacionamento
1 em estacionamento compartilhado
Aquecimento
Individualizado, fonte de alimentação elétrica
Ar condicionado
Frio/quente
Informações de preço
Preço
€ 274.680
Preço por m²
4.162 €/m²
Eficiência energética
  • Ano de construção

    2024
  • Estado

    Novo / Em construção
  • Aquecimento

    Individualizado, fonte de alimentação elétrica
  • Ar condicionado

    Frio/quente
Descubra cada canto da propriedade
+21
Opções adicionais

Contactar o anunciante

Ou