Vivenda familiar 322 m², nova, Novi Vinodolski

€ 550.000
5+
322 m²
3+
Não

Nota

Anúncio atualizado em 09/02/2026
Descrição

This description has been translated automatically and may not be accurate

referência: I29230

RESIDENTIAL VILLA WITH OPEN SEA VIEW, KLENOVICA, NOVI VINODOLSKI

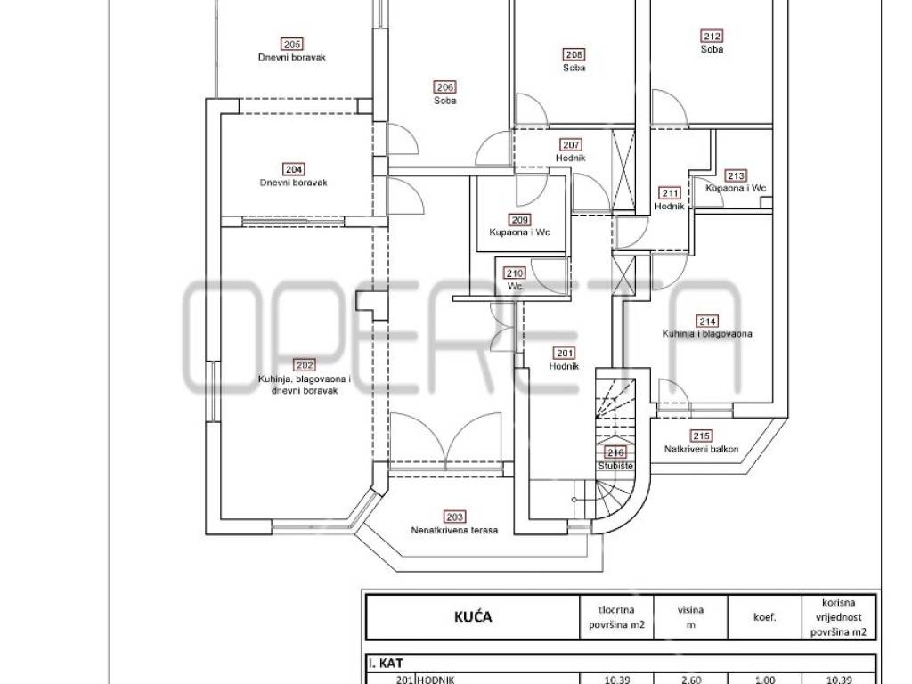
Residential villa for sale in Klenovica in an excellent location with a sea view. It consists of a ground floor, two floors and a gallery. The ground floor consists of a hallway, a living room with a kitchen and a dining room, a bedroom, two storage rooms, a toilet, a staircase, a boiler room and a wine cellar. On the first floor there is a hallway, living room with kitchen and dining room, 2 separate living rooms, 3 bedrooms, kitchen with dining room, guest toilet, bathroom with toilet, staircase, uncovered terrace and covered balcony. On the second floor and the gallery there is a corridor, two kitchens with a dining room, a separate kitchen, 3 bathrooms with a toilet, 4 bedrooms, a loggia, an uncovered terrace and 3 uncovered balconies. The house can be used for housing or as a tourist potential.
Opportunity!
Características
Tipologia
Vivenda familiar
Contrato
Venda
Andar
1
Elevador
Não
Superfície
322 m² | comercial 754 m²
Quartos
5+
Quartos
8
Casas de banho
3+
Mobilado
Não
Aquecimento
Central
Ar condicionado
Frio/quente
Detalhe da superfície

Habitação

Andar
1
Superfície
322,0 m²
Coeficiente
100%
Tipo de superfície
Principal
Sup comercial
322,0 m²

Terreno

Andar
Rés-do-chão
Superfície
432,0 m²
Coeficiente
100%
Tipo de superfície
Acessórios
Sup comercial
432,0 m²
Informações de preço
Preço
€ 550.000
Preço por m²
729 €/m²
Eficiência energética
  • Ano de construção

    1990
  • Estado

    Novo / Em construção
  • Aquecimento

    Central
  • Ar condicionado

    Frio/quente
Descubra cada canto da propriedade
+15
Opções adicionais

Contactar o anunciante

Ou