Apartamento T3 novo, primeiro andar, Centar, Opatija

€ 650.000
3
185 m²
2
1
Não

Nota

Anúncio atualizado em 01/05/2026
Descrição

This description has been translated automatically and may not be accurate

referência: I32385

In a peaceful location in Opatija, in a house with three residential units, a spacious and bright first-floor apartment is for sale, offering a panoramic sea view.

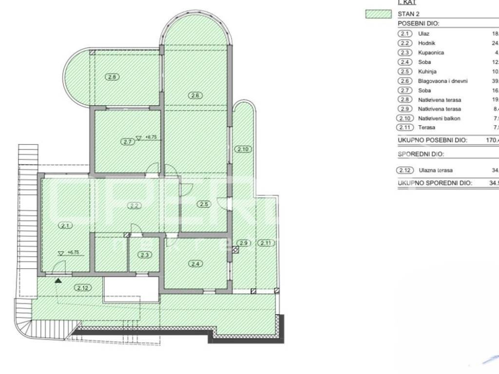
The apartment consists of an entrance, hallway, bathroom, two bedrooms, kitchen, dining room, and living room, two covered terraces, a covered balcony, and an uncovered terrace on the first floor, with a total surface area of 170.45 m. Additionally, it includes an auxiliary part an entrance terrace of 34.90 m on the first floor and an associated parking space of 12.50 m, bringing the total area to 217.85 m.

The property is equipped with preparations for air conditioning, central heating on heating oil, and electric underfloor heating in the bathrooms. It is being sold unfurnished, allowing future owners to decorate it to their own taste and needs.

The house is built on a slope and surrounded by greenery. Thanks to its large glass surfaces and excellent orientation, the apartment is filled with natural light throughout the day. It offers beautiful views of the Kvarner Bay, the islands, Opatija, and Rijeka.

The garden surrounding the villa is shared, and there is also an opportunity to purchase the other apartments in the building, or even the entire propertyideal for larger families or as an investment.

Distances:
Sea and beach: 650 m (approx. 9 min walk)
Restaurant: 900 m (13 min walk)
Opatija center: 1.2 km (15 min walk)
Rijeka: 12 km
Rijeka Airport (Krk): 35 km
Pula Airport: 95 km
Zagreb / Ljubljana: 120 km
Vienna, Budapest, Munich: approx. 500 km

For more information, photos, floor plans, or to schedule a viewing feel free to contact us.
Características
Tipologia
Apartamento
Contrato
Venda
Andar
1 andar
Elevador
Não
Superfície
185 m²
Quartos
3
Quartos
2
Casas de banho
2
Mobilado
Não
Estacionamento, lugares de estacionamento
1 em estacionamento compartilhado
Aquecimento
Central
Ar condicionado
Frio/quente
Informações de preço
Preço
€ 650.000
Preço por m²
3.514 €/m²
Eficiência energética
  • Ano de construção

    1985
  • Estado

    Novo / Em construção
  • Aquecimento

    Central
  • Ar condicionado

    Frio/quente
Descubra cada canto da propriedade
+7
Opções adicionais

Contactar o anunciante

Ou