Loja - Actividade Comercial para Venda

€ 3.000.000
1.200 m²

Nota

Anúncio atualizado em 10/02/2026
Descrição

referência: I34545

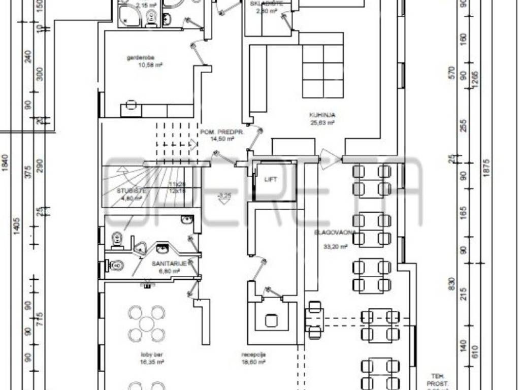
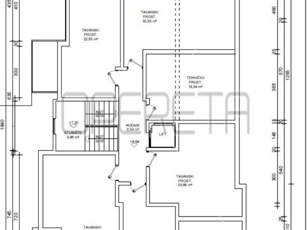
HOTEL SA ČETIRI ZVIJEZDICE U CENTRU GRADA PAGA SA APARTMANSKOM KUĆOM SA NAJVIŠIM OCJENAMA (9,7)
U centru grada Paga smjestio se Hotel sa 4* raspoloživ za kupnju zajedno sa apartmanskom kućom do Hotela, sveukupno 25 smještajnih jedinica. Hotel se sastoji od prizemlja, tri kata i potkrovlja. Prizemlje se sastoji od recepcije, kuhinje, restorana, caffe bara, praone, prostorije za djelatnike i ostakljene terase. Na 3 kata raspoređeno je 18 soba + 1 soba u potkrovlju. U potkrovlju se još nalazi prostorija za masažu, tehnička prostorija i spremište. Cjelokupan Hotel izvrsno je uređen. Apartmanska kuća koja se oslanja direktno na hotel sastoji se od prizemlja, kata i potkrovlja te pruža smješta u 5 studio apartmana i 1 četvero krevetni apartman. Četvero krevetni apartman sastoji se od 2 spavaće sobe, dnevnog boravaka, kuhinje, kupaonice, predsoblja.
IZVRSNA PRILIKA ZA INVESTICIJU U CENTRU GRADA KOJI JE OMILJENO ODREDIŠTE BROJNIH DOMAĆIH I STRANIH TURISTA.
Características
Contrato
Venda
Superfície
1.200 m²
Estacionamento, lugares de estacionamento
1 em estacionamento compartilhado
Informações de preço
Preço
€ 3.000.000
Preço por m²
2.500 €/m²
Eficiência energética
  • Aquecimento

    Individualizado, fonte de alimentação elétrica
  • Ar condicionado

    Frio/quente
Descubra cada canto da propriedade
+16
Opções adicionais

Contactar o anunciante

Ou