Apartamento T4 Kneza Borne, Knez Mislav, Zagreb

€ 4.250/mês
4
227 m²
r/c
Varanda

Nota

Anúncio atualizado em 03/03/2026
Descrição

referência: EUROVILLA-102983

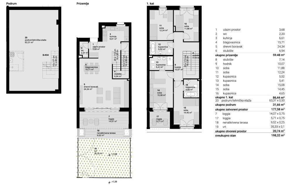
Park Kneževa, Branimirova - Kneza Borne, novogradnja, VMD, luksuzan dvoetažan peterosoban stan s vrtom, 198m2 sa duplom garažom 35m2 (17). Ukupno obračunski 215m2.Ovaj prekrasan stan razveden je u 3 etaže.Podrum 63,31m2: vešeraj, garderoba, igraonica.Prizemlje 59,48m2 sa loggiom 14,07m2, terasom 9,52m2 i vrtom 35,33m2: ulazni hall, kuhinja, prostran boravak.Kat 86,44m2 i loggia 5,77m2: četiri komforme spavaće sobe i tri kupaonice.Vrhunska oprema, etažno centralno podno grijanje, klimatiziran, alu drvo stolarija.Kuhinja sa svim aparatima i ugrađeni ormari u sobama. Postoji mogućnost da se stan u potpunosti namjesti.Park Kneževa nudi savršenu lokaciju i okruženje, u blizini svih bitnih sadržaja, samo 5 min lagane šetnje do strogog centra grada. U kompleksu se nalazi dječji vrtić, kvartovski lokal, fitness Gym 4 you.Ostale informacije na upit.... Više na eurovilla.hr, ID: 102983
Características
Tipologia
Apartamento
Contrato
Renda
Andar
Rés-do-chão
Superfície
227 m²
Quartos
4
Quartos
4
Varanda
Sim
Detalhe da superfície

Habitação

Andar
Rés-do-chão
Superfície
227,0 m²
Coeficiente
100%
Tipo de superfície
Principal
Sup comercial
227,0 m²
Informações de preço
Preço
€ 4.250/mês
Preço por m²
19 €/m²
Detalhes de custos
Fiança
Não indicado
Eficiência energética
  • Estado

    Novo / Em construção
  • Certificação energética

    Livre
Planta
Descubra cada canto da propriedade
+2
Opções adicionais

Contactar o anunciante

Ou