Apartamento T3 Visoka, Nova Ves - Gupčeva zvijezda, Zagreb

€ 3.000/mês
3
161 m²
1

Nota

Anúncio atualizado em 03/03/2026
Descrição

referência: EUROVILLA-481089

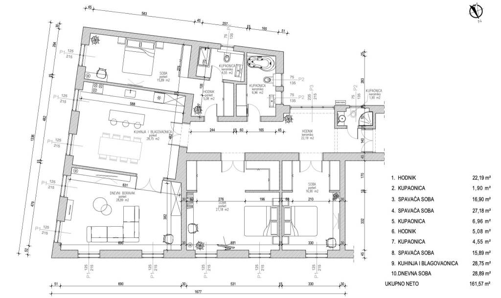
Gornji grad, Visoka ulica, jedna od najljepših lokacija u Zagrebu. Prekrasno uređen komforan četverosoban stan na 1. katu površine 161,57 m2.Stan se sastoji od ulaznog hodnika, toelata za goste, kuhinje s blagovaonicom, dnevnog boravka, 3 spavaće sobe, 2 kupaonice i garderobe.Kompletno renoviran 2021. godine, betonska deka, nove instalacije struje, vode, plina, protuprovalna vrata, nova vanjska i unutarnja drvena stolarija, hrastov parket francuski vez. Visina stropa 300cm. Orijentiran pretežno sjever istok.Vrhunski uređen i kompletno namješten. Etažno plinsko grijanje, podno grijanje u kupaonicama, klimatizirane sve prostorije. Rasvjeta Flos.Obzirom da se stan nalazi u zoni parkirana 1.1, moguće parkirati bilo gdje na Gornjem gradu, te u garaži Tuškanac po povlaštenoj cijeni mjesečne parkirne karte 100kn.Ostale informacije na upit.... Više na eurovilla.hr, ID: 481089
Características
Tipologia
Apartamento
Contrato
Renda
Andar
1
Superfície
161 m²
Quartos
3
Quartos
3
Detalhe da superfície

Habitação

Andar
1
Superfície
161,6 m²
Coeficiente
100%
Tipo de superfície
Principal
Sup comercial
161,6 m²
Informações de preço
Preço
€ 3.000/mês
Preço por m²
19 €/m²
Detalhes de custos
Fiança
Não indicado
Eficiência energética
  • Estado

    Bom / Habitável
  • Certificação energética

    Livre
Planta
Descubra cada canto da propriedade
+14
Opções adicionais

Contactar o anunciante

Ou