Apartamento T3 novo, rés-do-chão, Petrova - Voćarska, Zagreb

€ 1.760.000
3
217 m²
2
r/c
Sim
Mobilado

Nota

Anúncio atualizado em 05/03/2026
Descrição

This description has been translated automatically and may not be accurate

referência: 6209

Angelus nekretnine, real estate agency offers you an apartment for sale:

LOCATION
This villa is located on Srebrnjak, tucked away from Srebrnjak street, the microlocation ensures peace and privacy.
SREBRNJAK northern central part of Zagreb,
Only 5min drive to the main city square or 3km on foot.
19 min (7.2km) to American International School Zagreb (Bundek)
3 min (1.5km) to EURO Campus German /French International School (Fratrovac)
12 min (7.8km) to Bright Horizons International British School (Sveti Duh)
12 min (7.3km) to Matija Gubec International School (Knežija)
Public city transport is possible by bus the nearest bus stop is a 2-minute walk from the building. The bus line connects Kaptol and Kvaternikov Square.

DESCRIPTION
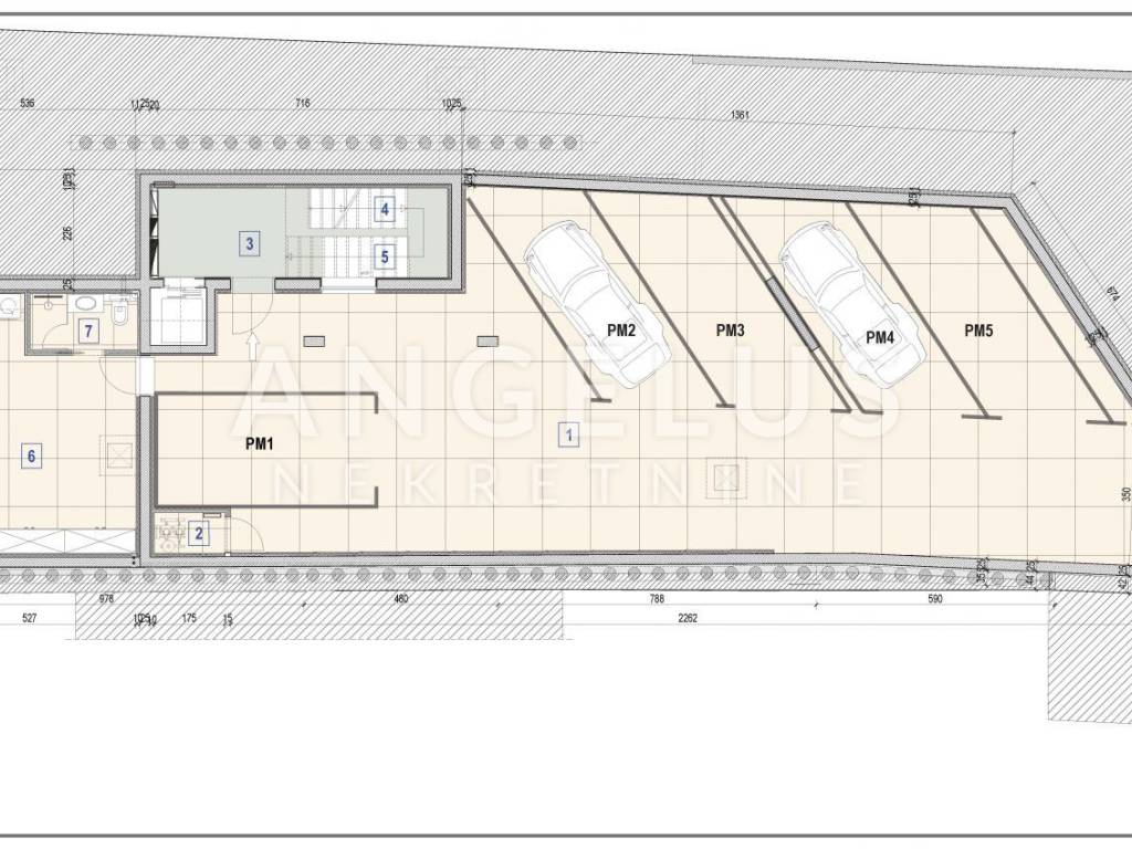
This luxurious two level penthouse of approximately 220m2 is located in a villa (new construction) with two apartments and an underground garage. The villa is located on a plot of 600m2.
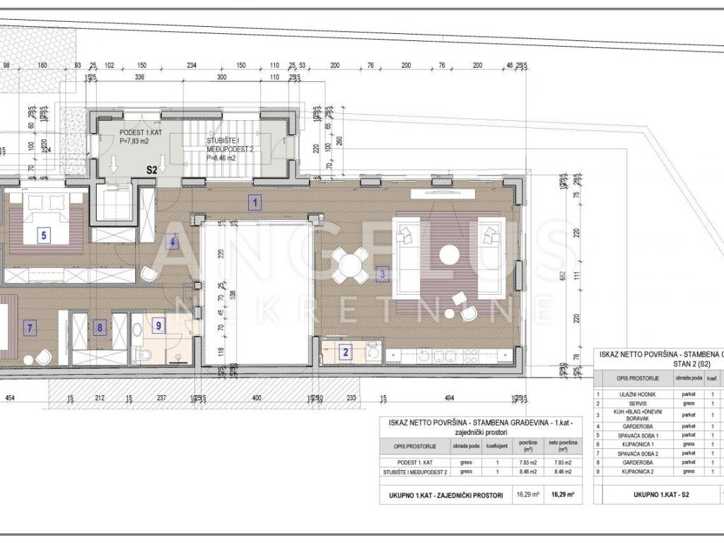
The apartment consists of two floors, the lower floor is formed by a living and a sleeping area.
The living area is an area of approximately 53 m2 in which the kitchen, dining room and living room are located. The sleeping area consists of two large comfortable bedrooms, each with its own bathroom and wardrobe.
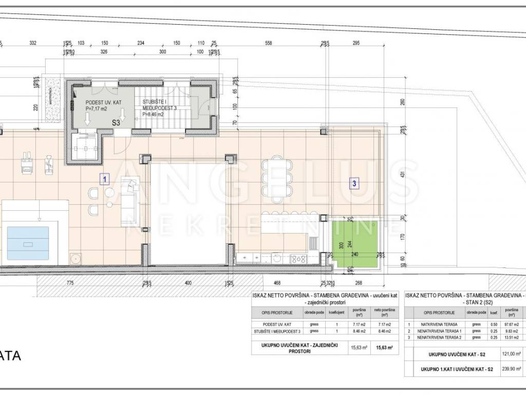
The upper floor, a recessed floor, consists of a covered terrace (97 m2) and an uncovered terrace (22 m2) which are designed as a space for socializing and relaxation. On the covered terrace, a summer kitchen, a large dining room and a relaxation area with a jacuzzi are planned. From this floor there is a panoramic view of the city.
The apartment has three parking spaces in the garage, with an area of 54m2 (calculated 27 m2).
The total floor area of the first floor and the lower floor is 239.90 m2, and the calculated floor area is 173.56 m2. The floor area is 119 m2.
This project is signed by an eminent Croatian architect.
The materials used in the construction are of very high quality; the facade is STO, the external aluminum joinery is made of Schuco profiles with triple-layered glass, the shutters are electric, a Schindler elevator connects all floors, heating and cooling is via a Daikin heat pump.
The villa's courtyard will be landscaped.
The expected completion of construction is summer 2026.

For more information, contact our agent.



The agency commission is calculated in accordance with the General Terms and Conditions and the Price List published at https://angelusnekretnine.hr/about-us

Your Angelus nekretnine d.o.o.
real estate agency

ID CODE: 6209

Sandra Mulović
Agent s licencom
Mob: +385 91 466 2233
Tel: +385 1 466 2233
E-mail: sandra@angelusnekretnine.hr
www.angelusnekretnine.hr
Se quiser saber mais, pode falar com Sandra Mulović.
Características
Tipologia
Apartamento
Contrato
Venda
Andar
Rés-do-chão
Elevador
Sim
Superfície
217 m²
Quartos
3
Quartos
2
Casas de banho
2
Mobilado
Sim
Varanda
Não
Terraço
Não
Ar condicionado
Ar condicionado, frio/quente
Outras características
  • Porta blindada
Informações de preço
Preço
€ 1.760.000
Preço por m²
8.111 €/m²
Eficiência energética
  • Ano de construção

    2026
  • Estado

    Novo / Em construção
  • Ar condicionado

    Ar condicionado, frio/quente
  • Certificação energética

    Livre
Descubra cada canto da propriedade
+13
Opções adicionais

Contactar o anunciante

Ou