Apartamento T4 Mandre, Kolan, Kolan

€ 525.100
4
89 m²
1
r/c
Não
Varanda
Terraço

Nota

Anúncio atualizado em 02/04/2026
Descrição

This description has been translated automatically and may not be accurate

referência: 7528

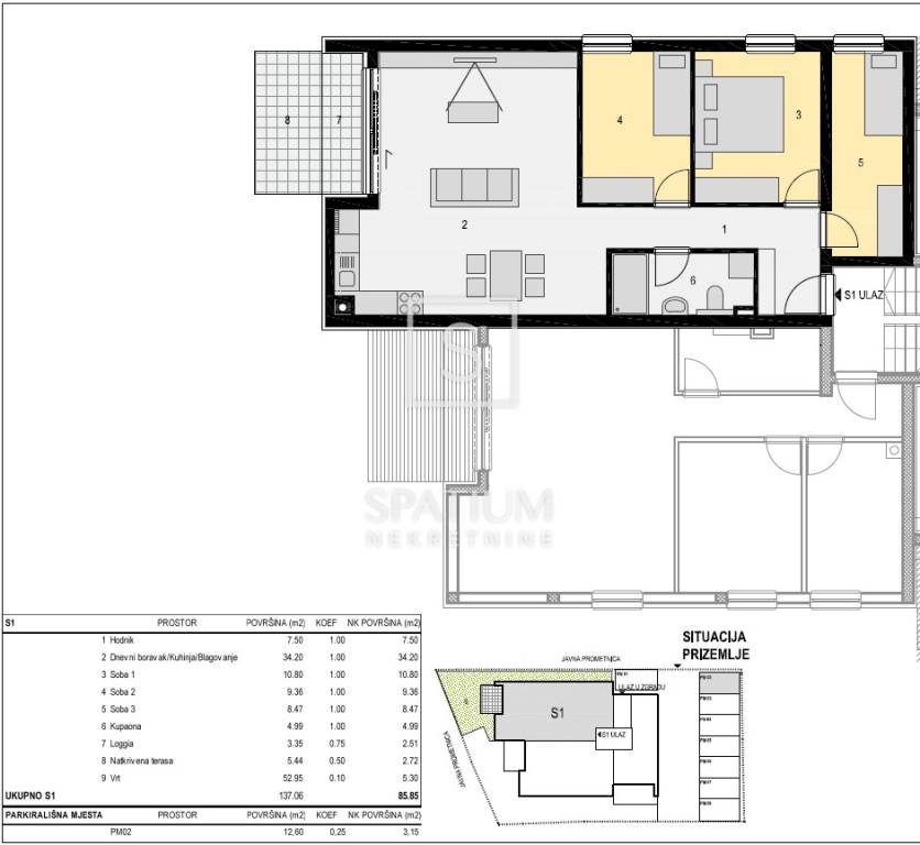
PAG, MANDRE, offers apartment S1 located on the ground floor of a modern new building with a total of eight residential units. The three-bedroom apartment has the added value of a private garden that provides a sense of peace and privacy, ideal for relaxing and enjoying the Mediterranean lifestyle.

The project has been carefully designed and arranged over three floors – ground floor, first and second floor – with special attention paid to the orientation of the apartments so that each of them has an open view of the sea. The building is located in one of the most attractive locations in Mandre, just a few steps from the sea, but also in the immediate vicinity of all important amenities such as shops, restaurants and bars.

The apartment consists of three spacious bedrooms, a bathroom with underfloor heating and an airy living area that combines the kitchen, dining room and living room. The living area leads out onto a covered terrace with an impressive view of the sea, while the private garden further expands the space for outdoor living.

Top-quality materials and equipment were used in the construction and furnishing to ensure a high level of comfort and quality of living. Schüco aluminum joinery has been installed, ceramic tiles from the renowned Marazzi manufacturer have been installed throughout the building, while the sanitary facilities are equipped with high-end Hansgrohe brand taps. The apartment has underfloor heating with WiFi control, electric shutters and high-class air conditioning in every room. The entire building is equipped with video surveillance for additional security.

The apartment also comes with its own parking space.
Estimated completion of works and move-in: early 2026.

Mandre is a tourist center of the Kolan Municipality, located on the southern side of the island of Pag with a beautiful view of Silba and Olib and the islets of Maun and Škrda, which are abundant in bays and beautiful beaches. Located right on the coast, Mandre boasts 3 kilometers of pebble beaches.

For all other information, please contact us with confidence.

Sanjin Latinčić
licensed agent
+385 91 28 99 599
sanjin@spatium.hr

Goran Božić
licensed agent
+385 98 186 5413
goran@spatium.hr

Spatium nekretnine
+385 51 272 903
info@spatium.hr

ID CODE: 7528

Sanjin Latinčić
Agent s licencom
Mob: +385 91 289 9599
Tel: +385 51 272 903
E-mail: sanjin@spatium.hr
www.spatium.hr

Goran Božić
Agent s licencom
Mob: +385 98 186 5413
Tel: +385 51 272 903
E-mail: goran@spatium.hr
www.spatium.hr
Características
Tipologia
Apartamento
Contrato
Venda
Andar
Rés-do-chão
Andares do Edifício
2
Elevador
Não
Superfície
89 m²
Quartos
4
Quartos
3
Casas de banho
1
Varanda
Sim
Terraço
Sim
Estacionamento, lugares de estacionamento
1 em estacionamento compartilhado
Ar condicionado
Ar condicionado, frio/quente
Outras características
  • Sistema de alarme
Informações de preço
Preço
€ 525.100
Preço por m²
5.900 €/m²
Eficiência energética
  • Ano de construção

    2026
  • Ar condicionado

    Ar condicionado, frio/quente
  • Certificação energética

    Não classificável
Planta
Descubra cada canto da propriedade
+2
Opções adicionais

Contactar o anunciante

Ou