Apartamento T2 Savica, Vrbik - Cvjetno naselje, Zagreb

€ 699.000
2
91 m²
8

Nota

Anúncio atualizado em 03/03/2026
Descrição

referência: EUROVILLA-251106

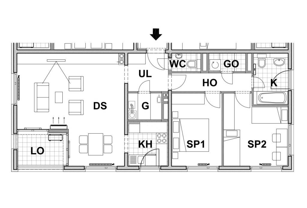
Iznimno elegantan trosoban stan površine 83,35 m², smješten na osmom katu suvremene novogradnje na atraktivnoj zagrebačkoj Savici. Ovaj luksuzan dom savršeno spaja vrhunsku kvalitetu gradnje, sofisticiran dizajn i funkcionalnost prostora, stvarajući ugođaj udobnosti i profinjenog urbanog života.Stan se sastoji od prostranog ulaznog prostora s garderobom, zasebnog toaleta, moderno opremljene kuhinje koja se skladno nadovezuje na elegantan dnevni boravak i blagovaonicu, hodnika, prostorije za gospodarstvo, dvije udobne spavaće sobe, luksuzne kupaonice te loggije koja pruža prekrasan pogled.Uz stan dolazi spremište površine 1,70 m² (NKP) te parkirno mjesto od 6,75 m² (NKP), što ukupno čini obračunsku površinu od 91,80 m².Stan je dio novogradnje poznate po besprijekornoj kvaliteti izvedbe, gdje su korišteni samo najkvalitetniji materijali i moderne tehnologije gradnje. Interijer je pomno osmišljen i uređen s posebnom pažnjom na detalje - elegantni komadi namještaja, odabrane boje i vrhunski uređaji stvaraju osjećaj doma koji odiše luksuzom i elegancijom.Prodaje se potpuno namješten i odmah useljiv. Lokacija stana nudi savršenu ravnotežu mirnog obiteljskog života i urbanih pogodnosti - u neposrednoj blizini nalaze se trgovine, škole, vrtići, parkovi, sportski sadržaji te izvrsne prometne poveznice s ostatkom grada.Za sva pitanja Vam stojimo na raspolaganju.... Više na eurovilla.hr, ID: 251106
Se quiser saber mais, pode falar com Ivan Guina.
Características
Tipologia
Apartamento
Contrato
Venda
Andar
8
Superfície
91 m²
Quartos
2
Quartos
2
Detalhe da superfície

Habitação

Andar
8
Superfície
91,8 m²
Coeficiente
100%
Tipo de superfície
Principal
Sup comercial
91,8 m²
Informações de preço
Preço
€ 699.000
Preço por m²
7.681 €/m²
Eficiência energética
  • Estado

    Novo / Em construção
  • Certificação energética

    Livre
Planta
Descubra cada canto da propriedade
+4
Opções adicionais

Contactar o anunciante

Ou