Apartamento T4 a vários níveis, Brezovica sjever, Zagreb

€ 264.150
4
105 m²
2

Nota

Anúncio atualizado em 29/04/2026
Descrição

referência: 184

PRODAJA, PROJEKT BREZOVICA III - CENTAR, 8 KUĆA U NIZU, USELJENJE 2027.
Prodaje se 8 kuća u nizu, koje se sastoje od prizemlja i kata te svakoj pripadaju dva parkirna mjesta i vrt.
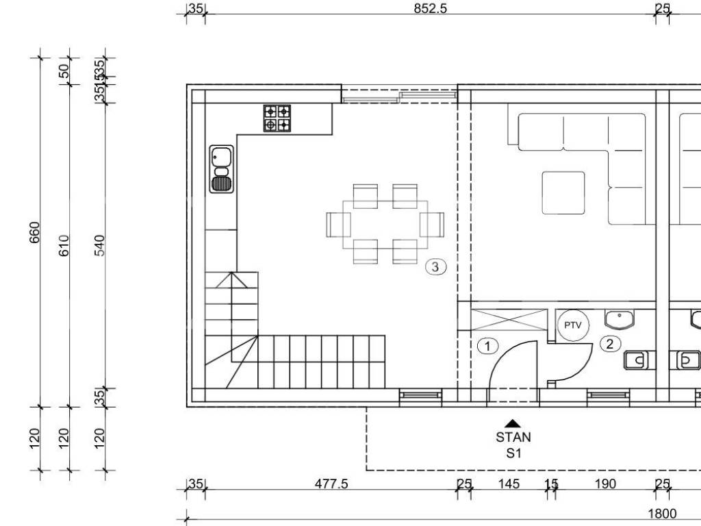
Prizemlje: ulazni prostor (2,17m2), wc (2,85m2) i dnevni boravak sa kuhinjom i blagovaonicom (40,12m2), ukupne prodajne površine 45,14 m2.
Kat: hodnik (5,31m2), spremište (2,20m2), spavaća soba (8,84m2), spavaće sobe (8,84m2), kupaonica (4,98m2), spavaća soba (14,98 m2), ukupne prodajne površine 45,15m2.
Svakoj kući pripada vrt i dva vanjska parkirna mjesta.
S1 - PRODANO
S2 - KUĆA 90 m2 + VRT 36 M2 + 2 PM = 264.150 eur
S3 - KUĆA 90 m2 + VRT 37 M2 + 2 PM = 263.475 eur
S4 - KUĆA 90 m2 + VRT 36 M2 + 2 PM = 265.000 eur
S5 - PRODANO
S6 - PRODANO
S7 - PRODANO
S8 - KUĆA 90 m2 + VRT 302 M2 + 2 PM +  poljoprivredno zemljište 1.400 m2 = 290.000 eur
LOKACIJA :
Arena centar 6 km, škola 250 m, vrtić 250 m, dom zdravlja 250 m.
OPREMA:
- Konstrukcija cigla, pregradbeni zidovi knauf- Izolacija – termo fasada stiropor- PVC stolarija rehau, troslojno staklo + rolete na struju- dizalice topline, podno grijanje- klima u dnevnom boravku- pločice prve klase u kupaonicama, parket u ostatku kuće
Za sve informacije nazovite 098/359876
ZIHER
Agencija za posredovanje u prometu nekretninama
Características
Tipologia
Apartamento
Contrato
Venda
Andar
A diversos níveis
Andares do Edifício
1
Superfície
105 m²
Quartos
4
Quartos
3
Casas de banho
2
Aquecimento
Central, com radiadores, alimentado a gás
Outras características
  • Janelas em vidro / PVC
Informações de preço
Preço
€ 264.150
Preço por m²
2.516 €/m²
Detalhes de custos
Despesas de condomínio
Sem taxas de condomínio
Eficiência energética
  • Ano de construção

    2025
  • Aquecimento

    Central, com radiadores, alimentado a gás
  • Certificação energética

    Não classificável
Descubra cada canto da propriedade
+8
Opções adicionais

Contactar o anunciante

Ou