Apartamento T4 novo, segundo andar, Kolan

€ 729.460
4
120 m²
2
2

Nota

Anúncio atualizado em 03/05/2026
Descrição

This description has been translated automatically and may not be accurate

referência: 15190-1

www.biliskov.comID:15190
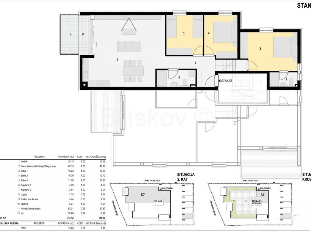
Pag, Mandre A three-room apartment of 120 m is for sale, located on the 2nd floor of a luxury new building with 8 apartments. The construction is expected to be completedduring March 2026.
Apartment (S7) consists of an entrance area, an open space with kitchen, dining and living room, three bedrooms, two bathrooms, a loggia, balcony, and a rooftop terrace.
The apartment comes with one uncovered outdoor parking space.
Excellent location on the island of Pag property right by the sea, with panoramic views and direct beach access. A rarity on the market, ideal for exclusive tourist rentals or a private oasis of peace. The Mandre harbor and all key amenities are just 700 meters away.
High-quality construction and materials ensure safety and comfort.
Energy certificate: in progress Exterior joinery: Aluminium with double glazing and electric shutter lifts (Schüco) Heating: Heat pump (underfloor heating)
Price:729.460
Agency commission for the buyer: 2% + VAT of the agreed purchase price
Se quiser saber mais, pode falar com Martin Zefkić.
Características
Tipologia
Apartamento
Contrato
Venda
Andar
2 andar
Superfície
120 m²
Quartos
4
Casas de banho
2
Ar condicionado
Centralizado, frio/quente
Outras características
  • Porta blindada
Informações de preço
Preço
€ 729.460
Preço por m²
6.079 €/m²
Eficiência energética
  • Ano de construção

    2026
  • Estado

    Novo / Em construção
  • Ar condicionado

    Centralizado, frio/quente
  • Certificação energética

    Não classificável
Descubra cada canto da propriedade
+24
Opções adicionais

Contactar o anunciante

Ou