Apartamento T4 rés-do-chão, Tar-Vabriga

€ 345.000
4
92 m²
1
1
Sim
Terraço

Nota

Anúncio atualizado em 08/04/2026
Descrição

This description has been translated automatically and may not be accurate

referência: IS1515941

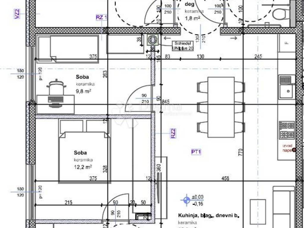
Apartment S1

Apartment S1 has a total area of 92.40 m and is located on the ground floor of the building. The apartment comes with a yard of 178 m. It consists of three bedrooms, one bathroom, and one WC, with parking available for two cars. The apartment also has a storage room with access from the parking area.

From the hallway, you enter one of the bedrooms and the living room with a dining area. The living room features a large sliding door that provides plenty of natural light. By passing through the sliding door, you enter the spacious garden, which is oriented to the south. At the end of the living room, there is an entrance to a vestibule, separated by a door. From the vestibule, you can access the master bedroom, bathroom, and WC.

The apartment is equipped with underfloor heating powered by a heat pump, and cooling is provided by an air conditioning unit. The apartment is also adapted for people with disabilities, with direct access to the apartment and garden from the parking area, which is right next to the apartment.

The building is located in a sought-after and peaceful area, just 300 meters from the center of the settlement, where you can find markets, cafés, restaurants, pharmacies, and other necessary amenities. It is 7 km to Novigrad, 11 km to Poreč, and 2000 meters to the sea and the beach. The expected completion of construction is by the end of 2025.

Note: The stated price refers to legal entities; for private individuals, the price is increased by the amount of VAT.

ID CODE: IS1515941

Karlo Šestan
Asistent u posredovanju
Mob: 091/361-1922
Tel: +385 52 771 458
E-mail: karlo.sestan@dogma-nekretnine.com
www.dogma-nekretnine.com
Se quiser saber mais, pode falar com Karlo Šestan.
Características
Tipologia
Apartamento
Contrato
Venda
Andar
1
Elevador
Sim
Superfície
92 m² | comercial 270 m²
Quartos
4
Quartos
3
Casas de banho
1
Varanda
Não
Terraço
Sim
Ar condicionado
Ar condicionado, frio/quente
Detalhe da superfície

Habitação

Andar
1
Superfície
92,0 m²
Coeficiente
100%
Tipo de superfície
Principal
Sup comercial
92,0 m²

Terreno

Andar
Rés-do-chão
Superfície
178,0 m²
Coeficiente
100%
Tipo de superfície
Acessórios
Sup comercial
178,0 m²
Informações de preço
Preço
€ 345.000
Preço por m²
1.278 €/m²
Eficiência energética
  • Ano de construção

    2026
  • Ar condicionado

    Ar condicionado, frio/quente
  • Certificação energética

    Livre
Descubra cada canto da propriedade
+23
Opções adicionais

Contactar o anunciante

Ou