Apartamento T3 primeiro andar, Tar-Vabriga

€ 230.000
3
61 m²
1
1
Sim
Terraço

Nota

Anúncio atualizado em 08/04/2026
Descrição

This description has been translated automatically and may not be accurate

referência: IS1515926

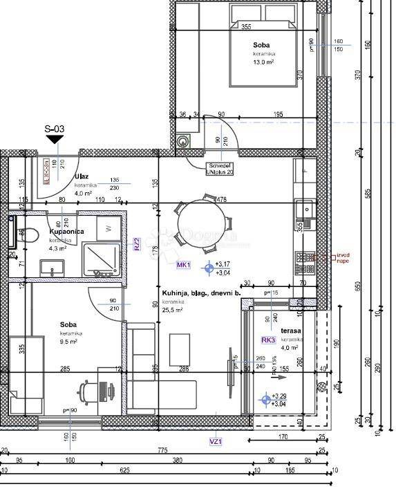
Apartment S3

Apartment S3 has a total area of 61.60 m and is located on the first floor of the building. It consists of two bedrooms, a living room with a dining area and kitchen, a bathroom, a hallway, and a terrace. From the hallway, you access the living room, and from the living room, you exit onto the terrace.

Heating is provided by a heat pump with underfloor heating, while cooling is ensured by an air conditioning unit. The apartment comes with a separate storage room of 2.80 m and two parking spaces. The building is equipped with an elevator, allowing easier access to the apartment.

The building is located in an attractive and peaceful location, just 300 meters from the center of the settlement, where markets, cafes, restaurants, pharmacies, and other necessary amenities are available. Novigrad is 7 km away, Poreč is 11 km away, and the sea and beach are 2000 meters away. The expected completion of construction is by the end of 2025.

Note: The listed price applies to legal entities; for private individuals, the price is increased by the amount of VAT.

ID CODE: IS1515926

Karlo Šestan
Asistent u posredovanju
Mob: 091/361-1922
Tel: +385 52 771 458
E-mail: karlo.sestan@dogma-nekretnine.com
www.dogma-nekretnine.com
Se quiser saber mais, pode falar com Karlo Šestan.
Características
Tipologia
Apartamento
Contrato
Venda
Andar
1 andar
Elevador
Sim
Superfície
61 m²
Quartos
3
Quartos
2
Casas de banho
1
Varanda
Não
Terraço
Sim
Ar condicionado
Ar condicionado, frio/quente
Informações de preço
Preço
€ 230.000
Preço por m²
3.770 €/m²
Eficiência energética
  • Ano de construção

    2026
  • Ar condicionado

    Ar condicionado, frio/quente
  • Certificação energética

    Livre
Descubra cada canto da propriedade
+23
Opções adicionais

Contactar o anunciante

Ou